English / Español / Русский

Julia Vakulenko - Broker -

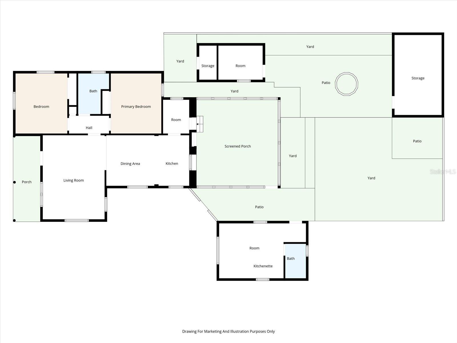
Oversized Lot in the Allendale Terrace Neighborhood Main House Entry Main House Brick Street with Towering Oak trees and a Huge Driveway Huge Driveway and a Separate Entrance to the Mother In-Law Suite View to the Living Room and Kitchen Living Room Virtually Staged Living Room Living Room Kitchen with Dining Area View from the Kitchen to the Dining Area Virtually Staged Kitchen and Dining Virtually staged; appliances not included. Kitchen Kitchen and Dining Additional Pantry/Storage Virtually Staged - Primary Bedroom 1 Primary Bedroom 1 Primary Bedroom 1 with Built-In Closet Updated Bathroom Updated Bathroom Virtually Staged - Bedroom 2 Bedroom 2 with Additional Storage Bedroom 2 with Built–In Closet Virtually Staged - Mother-In-Law Suite Detached Mother In-Law Suite 1 Bed/1 Bath with a Kitchenette Detached Mother In-Law Suite: 1 Bed/1 Bath with a Kichenette Mother In-Law Suite Bathroom Huge Screened-In Patio Huge Screened-In Patio Virtually Staged Detached 8'x10' Office/Studio Spacious Backyard with Fire Pit, Detached Office and Screened-In Patio Spacious Backyard with Fire Pit, Mother In-Law Suite and 12'x16' Storage Garage Spacious Backyard with Fire Pit and 12'x16' Storage Garage Additional Bike Storage Floor Plan featuring the Main House, Mother In-Law Suite, Office, Garage Storage, Large Screened-In Patio and Spacious Backyard Floor Plan featuring the Main House, Mother In-Law Suite, Office, Garage Storage, Large Screened-In Patio and Spacious Backyard Brick Street with Towering Oak Trees and a Huge Driveway Quiet Brick Street in the Allendale Terrace Neighborhood Oversized Lot in the Allendale Terrace Neighborhood Allendale Terrace Neighborhood, 10 minutes from Downtown st Pete Allendale Terrace Neighborhood
Loading map ...
Loading map ...

734 37TH AVE N, ST PETERSBURG, 33704



Property highlights

  • MLS#: TB8455226
  • 7,662.00 lot size Sq.Ft.
  • Year built: 1946

Property Overview

One or more photo(s) has been virtually staged. LOCATION, LOCATION, LOCATION! DETACHED MOTHER IN-LAW SUITE! HIGH & DRY, QUIET AND SAFE NEIGHBORHOOD!

Sitting high and dry on an oversized 7,662 sq. ft. lot in a non-flood zone, this charming home offers flexibility, comfort, and income potential in one of St. Petersburg’s most desirable neighborhoods.

MAIN HOUSE: Block construction - 2 bedrooms, 1 bathroom, and a huge screened-in patio perfect for entertaining or watching your favorite sport events with friends and family. Design your dream kitchen and refinish the original hardwood floors to your choice of color ($2,000 floor refinishing credit at closing).

DETACHED MOTHER-IN-LAW SUITE: 1 bedroom, 1 bathroom with kitchenette and newly installed split AC/heat system—ideal for an elderly parent, teen independence, or rental income (~$1,500/month).

ADDITIONAL SPACES: Detached 8' x 10' office/studio for remote work or hobbies and a 12' x 16' storage garage.

OUTDOOR LIVING: Spacious backyard with cozy fire pit, towering oak trees, and a huge driveway that could easily be transformed into a carport or additional garage.

UPGRADES & FEATURES: Gas tankless water heater, gas dryer, gas hookup for future range, water softener, well & sprinkler system.

Located in the highly sought-after Allendale Terrace neighborhood, walking distance to Allendale Park, Publix, ALDI, Whole Foods, restaurants, and a local brewery. Enjoy evening strolls on quiet, brick- and tree-lined streets in this family-friendly, low-traffic neighborhood.

Driving directions : From Dr. MLK Jr. traveling North, turn right into 37th Ave N, the house is on the right.

Property Features

Rooms Dimension Description
Primary Bedroom 11x12 First level , Wood
Bedroom 2 First level , Wood
Kitchen 7x11 First level , Wood
Living Room First level , Wood
Bathroom 1 First level , Tile , Rain Shower Head , Shower No Tub
Garage Apartment First level , En Suite Bathroom , Shower No Tub
Office 8x10 First level
Balcony/Porch/Lanai First level

Interior Features

  • Ceiling Fans(s)
  • Crown Molding
  • Kitchen/Family Room Combo
  • Open Floorplan
  • Solid Surface Counters
  • Thermostat

Appliances

  • Dryer
  • Gas Water Heater
  • Other
  • Refrigerator
  • Washer
  • Water Softener

Heating

  • Central

Laundry features

  • Gas Dryer Hookup
  • Other
  • Outside

Air Conditioning

  • Central Air

Fireplace

  • Free Standing
  • Outside
  • Wood Burning

Floor Covering

  • Tile
  • Wood

Utilities

  • Cable Available
  • Electricity Connected
  • Natural Gas Connected
  • Public
  • Sprinkler Well
  • Water Connected

Exterior features

  • Dog Run
  • Fire Pit
  • Garden
  • Gray Water System
  • Lighting
  • Private Entrance
  • Private Mailbox
  • Private Yard
  • Rain Gutters
  • Storage

Parking features

  • Assigned
  • Boat
  • Converted Garage
  • Curb Parking
  • Driveway
  • Guest
  • None
  • Off Street
  • On Street
  • Other
  • Oversized
  • RV Access/Parking
  • Workshop in Garage

View

  • Garden
  • Trees/Woods

Patio and porch features

  • Covered
  • Front Porch
  • Patio
  • Porch
  • Screened

Architectural Style

  • Historic
  • Patio Home
  • Traditional

Community Features

  • Street Lights

Construction Materials

  • Block

Other Structures

  • Additional Single Family Home
  • Guest House
  • Outhouse
  • Shed(s)
  • Storage
  • Workshop

Road Surface Type

  • Brick
  • Other

Property Condition

  • Completed

Roof

  • Shingle

Foundation

  • Block
  • Brick/Mortar
  • Concrete Perimeter
  • Crawlspace
  • Slab

Vegetation

  • Mature Landscaping
  • Oak Trees

Lot Features

  • Landscaped
  • Oversized Lot
  • Private
  • Street Brick

School Information


Listing information courtesy of DALTON WADE INC

All listing information is deemed reliable but not guaranteed and should be independently verified through personal inspection by appropriate professionals. Listings displayed on this website may be subject to prior sale or removal from sale; availability of any listing should always be independently verified.
Listing information is provided for consumer personal, non-commercial use, solely to identify potential properties for potential purchase; all other use is strictly prohibited and may violate relevant federal and state law.
Listing data comes from My Florida Regional MLS.