English / Español / Русский

Julia Vakulenko - Broker -

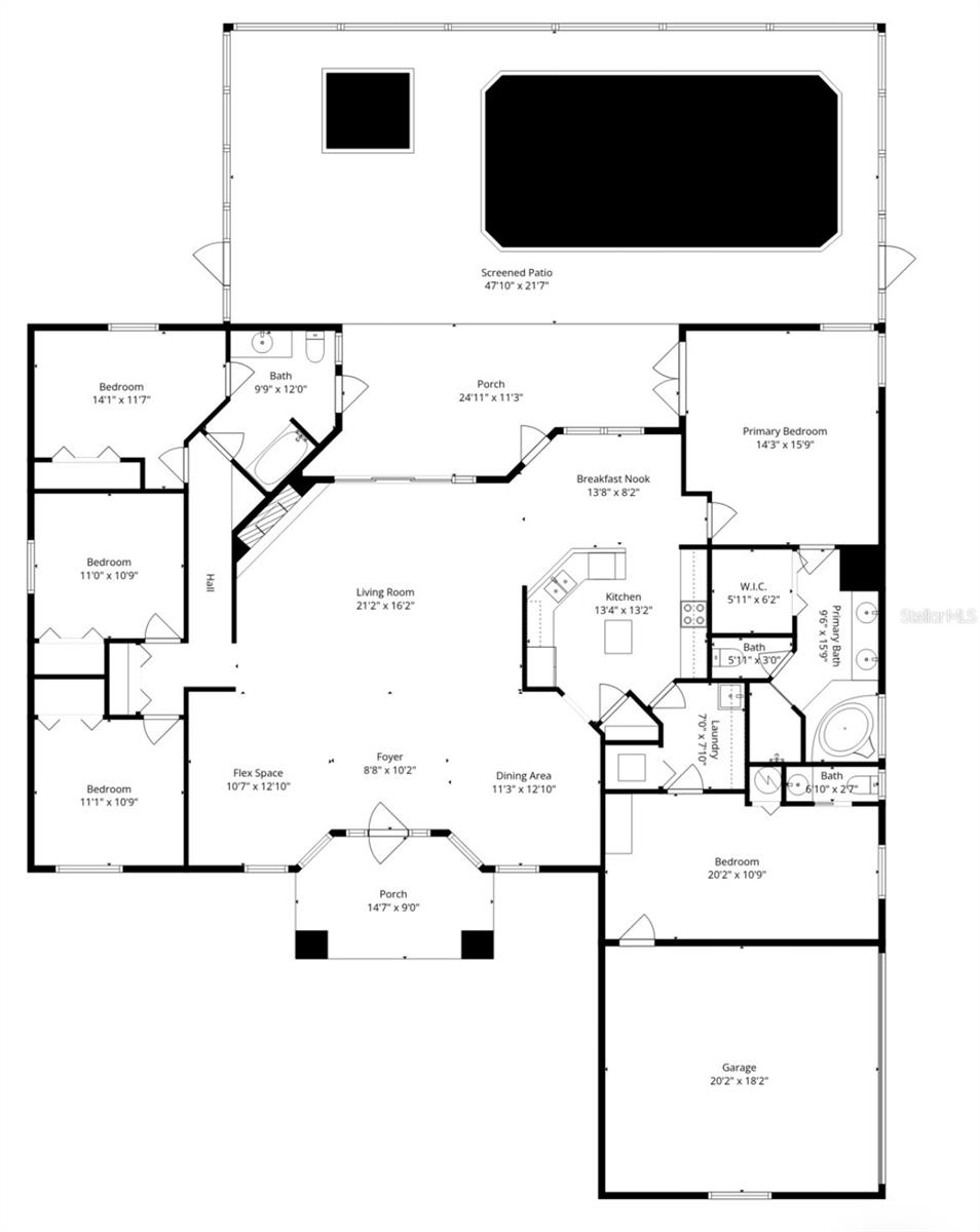
The Front of this Home is Gorgeous, and a new roof was installed in 2022 View 2 of the front of the Home There is a Side Pull In Garage with a driveway Aerial Outline of the Front of the Property Aerial Outline of the Back of the Property Elegant and Gorgeous Entry..Welcome Home Beautiful Twlight View of the Home Floor Plan Great Room with Sliding glass doors to the Pool Area This is the Great Room Staged Another View of the Great Room Staged Notice the Custom Shelving in the Great Room There is an Amazing  Built-In Wood Burning Fireplace in the Great Room View of the Front Door and Beautiful Front Windows This area of the Great Room could be used for a lovely sitting area Virtually staged as a sitting area Dining Room with a Gorgeous Chandelier Dining Room View 2 Virtually Staged as a Dining Room What a Beautiful Kitchen There is an abundance of beautiful solid wood oak cabinets and an island Notice the stainless steel appliances There are wonderful granite counter-tops in the kitchen Breakfast nook with bay windows overlooking the gorgeous pool and jacuzzi Staged Breakfast Nook Gorgeous Master Bedroom The Master Bedroom has french doors out to the Pool and Jacuzzi Staged Master Bedroom Master Bathroom with a Gorgeous Vanity with Dual Vanity Sinks and a Granite Top There is a Jetted Tub and Beautiful Step-In Shower in the Master Bathroom There is a Huge Walk-In Closet in the Master Bedroom Hallway to the other Guest Bedrooms Guest Bedroom One Guest Bedroom One Virtually Staged There is a large closet in this bedroom Entry to the left is Guest Bedroom Two Guest Bedroom Two Guest Bedroom Two is Virtually Staged Bedroom Two has a large closet This is the Pool Bathroom which has a door to Bedroom Two This is the Vanity in the Second Full Bathroom that is a Pool Bathroom There is a Tub/Shower  Combo in the Pool Bathroom that is Beautifully Tiled Guest Bedroom Three Guest Bedroom Three Virtually Staged Guest Bedroom Three has a large closet Guest Bedroom Four is light and bright Bedroom Four is beautifully Staged Bedroom Five has a Half Bathroom Half Bathroom in the Fifth Bedroom Laundry Room with a Utility Sink and lovely cabinets This is the two car garage that is attatched to the home There are Gorgeous Pavers in the Pool Area There are Gorgeous Pavers in the Pool Area Door to the Pool Bath in the screened in pool area The Jacuzzi and Pool are  Amazing Beautiful Jacuuzi Sparkling Pool View two of the Pool Beautiful Backyard Backyard View 2 Backyard View 3 Huge Shed Inside of the Shed This 24 X 34 Metl Building was added in 2019 and has A/C and a driveway This 24 X 34 Metl Building was added in 2019 and has A/C and a driveway Inside of the Metal Building is insulated View 2 of the Inside of the Metal Building Gorgeous Concrete Table and Benches and Gazebo There is a Wonderful Gazebo you will just Love !! Aerial View of the front of the Property Ariel View of the back of the Property
Loading map ...
Loading map ...

17948 GREENSBORO ST, SPRING HILL, 34610

  • $585,000
  • Price changed 04/21/2026 from $595,000, -1.68%
  • 5 Beds, 2 Baths (and 1 half-baths) , 2,425 Sq.Ft
  • County: Pasco
  • Subdivision: LEISURE HILLS


Property highlights

  • MLS#: W7884217
  • 50,325.00 lot size Sq.Ft.
  • Year built: 2008
  • Parking spaces: 4
  • Pool: Private pool

Property Overview

Experience refined country living in this exquisite custom-built 5 bedroom, 2.5 bath Stunning Pool home with 2425 sq ft of living space and a 2 car garage set on 1.16 acres of serene, fully fenced property. There are no deed restrictions and no HOA and this amazing home is located in an X flood Zone with Agricultural zoning. Thoughtfully designed with both elegance and functionality in mind, this home offers privacy, sophistication, and exceptional indoor-outdoor living. A Grand entry leads into a beautifully appointed great room featuring a wonderful wood burning fire place and custom built shelving, creating a warm yet upscale atmosphere ideal for both relaxing and entertaining. The Exterior of the home was freshly painted in 2023, the entire home has Gorgeous tile flooring, and fresh interior paint. The expansive kitchen is a chef’s dream, showcasing solid oak cabinetry, gleaming granite countertops, newer stainless steel appliances, large pantry and a charming breakfast nook with a bay window overlooking the sparkling pool and jacuzzi—bringing natural light and picturesque views into your everyday routine. Step outside to your private resort-style retreat, where a stunning Pool and Luxurious Jacuzzi are surrounded by elegant pavers, offering the perfect setting for entertaining or unwinding in complete tranquility. Enhancing the outdoor experience even further is a gorgeous gazebo paired with a solid concrete table and benches, creating an inviting setting for al fresco dining, morning coffee, or evening cocktails. The spacious primary suite is a true sanctuary, featuring a jetted garden tub, dual granite vanities with beautifully crafted cabinetry, a step-in shower, and an oversized walk-in closet. Additional highlights include an interior laundry room with built-in cabinetry and utility sink, a full security system, and a brand-new roof installed in 2022. The versatile fifth bedroom includes its own private half bath—ideal for guests or multi-generational living—while the second bedroom enjoys direct access to the pool bath, complete with a tub/shower combo, elegant vanity, and French door leading to the outdoor living area. All four of the guest bedrooms have large closets and fan/lights. Completing this exceptional property is a massive insulated metal 24 X 34 building newly added in 2019 with its own driveway and A/C. There is an additional large metal shed, and ample space for all your recreational vehicles, equipment, and hobbies. This one-of-a-kind property seamlessly blends luxury, comfort, and country charm and delivers the perfect blend of PRIVACY, and rural charm, an extraordinary place to call home. Conveniently located near nature preserves, beaches, golf courses, schools, hospitals, shopping and dining, with access to major roadways....just minutes to the Suncoast Parkway and approximately one hour from Tampa. Schedule your private tour today and experience the endless possibilities this amazing property offers !!

Driving directions : Countyline road and the Sun Coast hwy, head west and then left on Alexson to right on Oxenham and the right onto Greensboro st to address.

Property Features

Rooms Dimension Description
Living Room 40.7x38.5 First level , Ceramic Tile , Ceiling Fan(s)
Dining Room 11.3x12.1 First level , Ceramic Tile
Kitchen 13.4x13.2 First level , Ceramic Tile , Pantry
Primary Bedroom 14.3x15.9 First level , Ceramic Tile , Pantry
Bedroom 2 14.1x11.7 First level , Ceramic Tile , Ceiling Fan(s)
Primary Bathroom 9.6x15.09 First level , Ceramic Tile , Tub with Separate Shower Stall
Utility Room 7x7.1 First level , Ceramic Tile
Bedroom 3 11x10.9 First level , Ceramic Tile , Ceiling Fan(s)
Bedroom 4 11.1x10.9 First level , Ceramic Tile , Ceiling Fan(s)
Bedroom 5 20.2x10.9 First level , Ceramic Tile , Ceiling Fan(s)
Bathroom 2 9.9x12 First level , Ceramic Tile , Tub With Shower
Balcony/Porch/Lanai 47.1x21.7 First level , Concrete

Interior Features

  • Built-in Features
  • Cathedral Ceiling(s)
  • Ceiling Fans(s)
  • Crown Molding
  • Eat-in Kitchen
  • High Ceilings
  • Living Room/Dining Room Combo
  • Open Floorplan
  • Solid Wood Cabinets
  • Split Bedroom
  • Stone Counters
  • Tray Ceiling(s)
  • Walk-In Closet(s)
  • Window Treatments

Appliances

  • Dishwasher
  • Electric Water Heater
  • Microwave
  • Range
  • Range Hood
  • Refrigerator

Heating

  • Central

Laundry features

  • Electric Dryer Hookup
  • Inside
  • Laundry Room
  • Washer Hookup

Air Conditioning

  • Central Air

Fireplace

  • Living Room
  • Wood Burning

Floor Covering

  • Ceramic Tile

Utilities

  • Cable Available
  • Electricity Connected
  • Sprinkler Well
  • Water Connected

Exterior features

  • French Doors
  • Rain Gutters
  • Sliding Doors
  • Sprinkler Metered

Pool features

  • Gunite
  • In Ground
  • Screen Enclosure

Parking features

  • Driveway
  • Garage Door Opener
  • On Street
  • Workshop in Garage

Patio and porch features

  • Covered
  • Rear Porch
  • Screened

Architectural Style

  • Contemporary

Security Features

  • Security System
  • Security System Owned
  • Smoke Detector(s)

Construction Materials

  • Block
  • Concrete
  • Stucco

Other Structures

  • Shed(s)
  • Workshop

Road Surface Type

  • Paved

Roof

  • Shingle

Foundation

  • Slab

Vegetation

  • Mature Landscaping
  • Trees/Landscaped

Lot Features

  • Cleared
  • In County
  • Landscaped
  • Paved
  • Zoned for Horses

School Information


Listing information courtesy of KW REALTY ELITE PARTNERS

All listing information is deemed reliable but not guaranteed and should be independently verified through personal inspection by appropriate professionals. Listings displayed on this website may be subject to prior sale or removal from sale; availability of any listing should always be independently verified.
Listing information is provided for consumer personal, non-commercial use, solely to identify potential properties for potential purchase; all other use is strictly prohibited and may violate relevant federal and state law.
Listing data comes from My Florida Regional MLS.