English / Español / Русский

Julia Vakulenko - Broker -

TB8491630 TB8491630 TB8491630 TB8491630 TB8491630 TB8491630
Loading map ...
Loading map ...

530 LUCERNE AVE, TAMPA, 33606



Property highlights

  • MLS#: TB8491630
  • 11,049.00 lot size Sq.Ft.
  • Year built: 2026
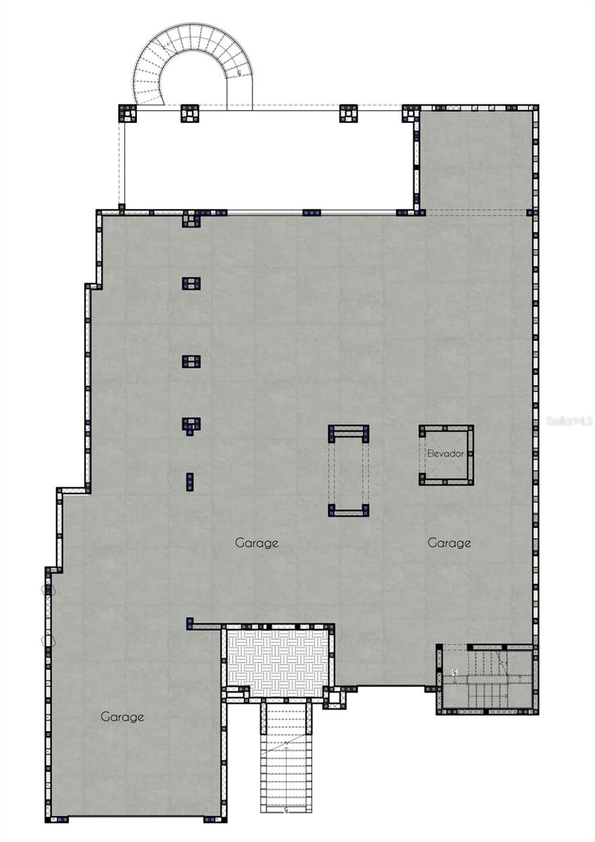
  • Parking spaces: 8
  • Pool: Private pool Community pool

Property Overview

Under Construction. An architectural statement of modern luxury, this exceptional new construction is perfectly positioned on Davis Islands, Tampa Bay’s most coveted address. Offering 7,124 sq ft of refined living, this residence blends bold contemporary design with effortless functionality, creating a home that is as striking as it is livable.

The home features a rare full lower-level garage accommodating 8–12 vehicles, complete with private elevator access servicing all levels. A grand floating staircase, wide-plank white oak flooring, and natural stone finishes set the tone for a truly elevated living experience.

Designed for both everyday living and unforgettable entertaining, the heart of the home features a chef’s double-island kitchen with Sub-Zero refrigeration, Wolf appliances, natural gas range, and an oversized pantry with additional refrigeration. The open-concept layout flows seamlessly into the family room and formal dining space, all centered around a stunning ethanol fireplace, creating a warm, sophisticated ambiance throughout.

Indoor-outdoor living leads to a resort-style backyard with pool, spa, and gas-heated features designed for year round enjoyment.

With 6 bedrooms and 8 bathrooms, the home offers a luxurious primary suite retreat with a spa-inspired bath, oversized shower, and dual vanities. A spacious upper-level laundry room with two washers and two dryers adds a layer of everyday ease without compromising design.

Crowning the home is a rooftop terrace with sweeping, far-reaching views—an elevated escape perfect for sunset gatherings or quiet moments above it all. Additional highlights include a gas-powered outdoor kitchen and thoughtfully designed flexible living spaces.

A rare opportunity to own a new modern residence in Davis Islands, where location, design, and lifestyle converge.

Driving directions : From Tampa International Airport Take Bessie Coleman Blvd to George J Bean Outbound Pkwy/George J. Bean Pkwy Take FL-60 E, W Platt St and Davis Blvd to Martinique Ave Drive to Lucerne Ave

Property Features

Rooms Dimension Description
Primary Bedroom Second level , Wood , Breakfast Bar , Built-In Shower Bench , Closet Pantry , En Suite Bathroom , Makeup/Vanity Space , Split Vanities , Tub with Separate Shower Stall , Window/Skylight in Bath
Family Room First level , Wood
Kitchen First level , Wood
Bedroom 1 First level , Wood , En Suite Bathroom
Bedroom 2 Second level , Wood , En Suite Bathroom
Bedroom 3 Second level , Wood , En Suite Bathroom
Bedroom 4 Second level , Wood , En Suite Bathroom
Bedroom 5 Second level , Wood , En Suite Bathroom
Primary Bathroom Second level
Living Room First level

Interior Features

  • Eat-in Kitchen
  • Elevator
  • High Ceilings
  • Open Floorplan
  • PrimaryBedroom Upstairs
  • Thermostat
  • Tray Ceiling(s)
  • Walk-In Closet(s)

Appliances

  • Bar Fridge
  • Convection Oven
  • Cooktop
  • Dishwasher
  • Disposal
  • Dryer
  • Exhaust Fan
  • Freezer
  • Microwave
  • Range Hood
  • Refrigerator
  • Tankless Water Heater
  • Washer

Heating

  • Electric
  • Natural Gas

Laundry features

  • Inside

Air Conditioning

  • Central Air

Fireplace

  • Family Room
  • Gas

Floor Covering

  • Wood

Utilities

  • Cable Connected
  • Electricity Connected
  • Natural Gas Connected
  • Sewer Connected
  • Underground Utilities
  • Water Connected

Exterior features

  • Balcony
  • Outdoor Grill
  • Outdoor Kitchen

Pool features

  • Heated
  • In Ground
  • Lighting
  • Salt Water

Parking features

  • Covered
  • Garage Door Opener

View

  • City

Patio and porch features

  • Covered
  • Patio
  • Rear Porch

Architectural Style

  • Contemporary

Community Features

  • Airport/Runway
  • Dog Park
  • Fitness Center
  • Golf Carts OK
  • Park
  • Playground
  • Pool
  • Restaurant
  • Tennis Court(s)

Construction Materials

  • Block
  • Stucco

Road Surface Type

  • Paved

Property Condition

  • Under Construction

Roof

  • Other

Foundation

  • Block
  • Pillar/Post/Pier
  • Slab
  • Stem Wall

Lot Features

  • Paved

School Information


Listing information courtesy of COLDWELL BANKER REALTY

All listing information is deemed reliable but not guaranteed and should be independently verified through personal inspection by appropriate professionals. Listings displayed on this website may be subject to prior sale or removal from sale; availability of any listing should always be independently verified.
Listing information is provided for consumer personal, non-commercial use, solely to identify potential properties for potential purchase; all other use is strictly prohibited and may violate relevant federal and state law.
Listing data comes from My Florida Regional MLS.