English / Español / Русский

Julia Vakulenko - Broker -

TB8488109 TB8488109 front TB8488109 kitchen with new trash compactor, oven and microwave open concept of kitchen, office and living room TB8488109 TB8488109 2nd floor bathroom 3rd floor bathroom office or crafting area master bedroom master bath master bath 2nd bedroom 3rd bedroom garage half bath 2nd floor back deck 2nd floor deck and grill 2nd floor deck 3rd floor back deck from master bedroom deck by the pool pool and deck dock with lift back view of home from the water TB8488109 TB8488109 TB8488109 TB8488109 TB8488109 Say good night after seeing this view every night
Loading map ...
Loading map ...

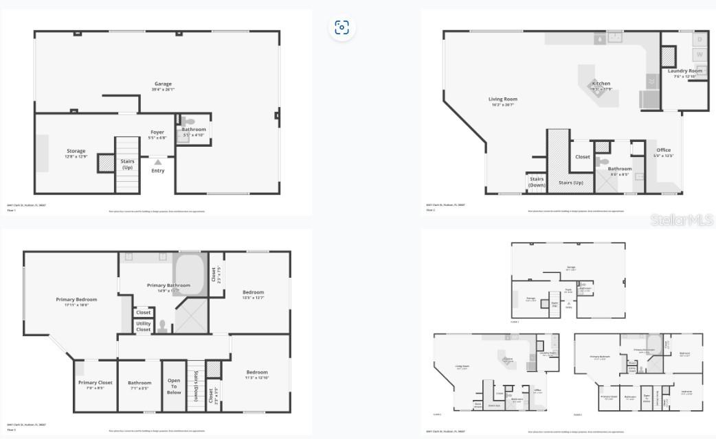
6441 CLARK ST, HUDSON, 34667

  • $819,900
  • Price changed 04/11/2026 from $849,000, -3.43%
  • 3 Beds, 3 Baths (and 1 half-baths) , 2,246 Sq.Ft
  • County: Pasco
  • Subdivision: HUDSON BEACH ESTATES


Property highlights

  • MLS#: TB8488109
  • 3,120.00 lot size Sq.Ft.
  • Year built: 2003
  • Parking spaces: 3
  • Pool: Private pool
  • Waterfront: (56 ft)

Property Overview

JUST LISTED... Waterfront Access POOL HOME with large Dock with Lift and Gulf Views on deep Canal. Amazing waterfront views can be seen from 4 large balconies & lots of large windows to soak up all that Florida weather and gorgeous sunsets. The large 2nd floor balcony expands the entire length of the 2nd level and has a custom outdoor grill area and extra wide space for tables and chairs with an incredible view. The 3rd floor balcony also expands the entire length of the 3rd floor on front of the house. The dock lift allows you the ability to drop your boat in the water in the DEEPEST WIDEST canal that leads directly to the gulf. Go catch your next big fishing adventure, take a day with loved ones on the water to nearby private islands or waterfront restaurants with dock access or go scalloping. Extra bonus is that the sea wall was also just updated and there is power and water at the dock with a ladder for floating in the water or taking a kayak to the flats to explore! There is a hoist to lift your kayaks or other water toys out of the water. The pool is heated and has been resurfaced in 2023 with a spillover waterfall feature and swim jets surrounded by a paver patio and fenced yard. The house is 3 levels with a dumbwaiter for helping to carry in groceries to the 2nd level and also a laundry chute from the 3rd to 2nd level and a central vacuum system throughout. The home features an open floor plan and large kitchen with ALL NEW appliances that is perfect for entertaining or just to have lots of open space with views of the water from every room. The Master bedroom has the best views with a private balcony and large bathroom with a step in shower and jacuzzi tub. The entire interior was recently painted for a very clean, neutral color throughout the home. Boat lift was replaced in 2020, 2 new AC systems in 2023, New pool pump in 2024 (even have an extra in a box that goes with the sale. Tile and laminate flooring throughout the home (no carpet) with lots of storage spaces. The garage is a full 3 car garage with high ceilings and lots of storage areas with a 1/2 bath on the bottom level. On entertaining days, you can open the doors and enjoy the breeze throughout house. This location is amazing and everyday feels like a Florida vacation with walking distance of Hudson Beach, ice cream shops, beach bars, Marina and the public boat ramp. You are also 45 min from Tampa Airport for easy access to anywhere and by boat you can go to Clearwater Beach or Honeymoon Island in about 30 min by boat or car or several nearby waterfront restaurants to pull up by boat. This is truly living the Florida Lifestyle!

Driving directions : From US 19 in Hudson, go west on Clark Street. 3 story yellow home is on the right across from former Ollie Oyster

Property Features

Rooms Dimension Description
Living Room 10x20 Second level , Ceramic Tile,Concrete,Cork , Ceiling Fan(s)
Kitchen 16x31 Second level , Ceramic Tile , Tile Counters
Den 10x5 Second level , Ceramic Tile , Desk Built-In
Primary Bedroom 16x16 Third level , Laminate , En Suite Bathroom
Primary Bathroom 15x14 Third level , Ceramic Tile , Bath w Spa/Hydro Massage Tub
Bathroom 2 14x11 Third level , Ceramic Tile , Shower No Tub
Bathroom 3 14x12 Second level , Ceramic Tile , Shower No Tub
Utility Room 8x9 Second level , Ceramic Tile , Built-In Shelving
Workshop 17x8 First level , Ceramic Tile
Balcony/Porch/Lanai 28x8 First level , Concrete
Balcony/Porch/Lanai 13x28 Second level , Ceramic Tile,Concrete
Balcony/Porch/Lanai 5x4 Second level , Ceramic Tile
Balcony/Porch/Lanai 13x8 Third level , Ceramic Tile
Balcony/Porch/Lanai 28x5 Third level , Ceramic Tile

Interior Features

  • Ceiling Fans(s)
  • Central Vaccum
  • Dumbwaiter
  • High Ceilings
  • Kitchen/Family Room Combo
  • Open Floorplan
  • PrimaryBedroom Upstairs
  • Solid Wood Cabinets
  • Thermostat
  • Walk-In Closet(s)
  • Window Treatments

Appliances

  • Built-In Oven
  • Cooktop
  • Dishwasher
  • Disposal
  • Electric Water Heater
  • Exhaust Fan
  • Ice Maker
  • Microwave
  • Refrigerator
  • Trash Compactor

Heating

  • Central
  • Heat Pump

Laundry features

  • Electric Dryer Hookup
  • Inside
  • Laundry Chute
  • Laundry Room
  • Washer Hookup

Air Conditioning

  • Central Air

Floor Covering

  • Ceramic Tile
  • Laminate

Utilities

  • Cable Available
  • Electricity Available
  • Electricity Connected
  • Phone Available
  • Public
  • Sewer Available
  • Sewer Connected
  • Water Available
  • Water Connected

Exterior features

  • Lighting
  • Outdoor Grill
  • Outdoor Shower
  • Private Mailbox
  • Sliding Doors

Pool features

  • Auto Cleaner
  • Child Safety Fence
  • Deck
  • Gunite
  • Heated
  • In Ground
  • Lighting
  • Pool Sweep

Parking features

  • Driveway
  • Garage Door Opener
  • Garage Faces Rear
  • Golf Cart Garage
  • Ground Level
  • Workshop in Garage

View

  • Pool
  • Water

Patio and porch features

  • Covered
  • Deck
  • Rear Porch

Architectural Style

  • Coastal

Community Features

  • Golf Carts OK
  • Sidewalks
  • Street Lights

Construction Materials

  • Block
  • Vinyl Siding
  • Frame

Other Structures

  • Workshop

Water access details

  • Beach
  • Canal - Brackish
  • Canal - Saltwater
  • Marina
  • Davits
  • Lift
  • Minimum Wake Zone
  • No Wake Zone
  • Sailboat Water
  • Seawall - Concrete

Road Surface Type

  • Asphalt

Property Condition

  • Completed

Roof

  • Built-Up
  • Metal

Foundation

  • Block
  • Slab

Lot Features

  • Near Marina
  • Near Public Transit
  • Private
  • Sidewalk
  • Paved

Listing information courtesy of BLUE SUN REALTY LLC

All listing information is deemed reliable but not guaranteed and should be independently verified through personal inspection by appropriate professionals. Listings displayed on this website may be subject to prior sale or removal from sale; availability of any listing should always be independently verified.
Listing information is provided for consumer personal, non-commercial use, solely to identify potential properties for potential purchase; all other use is strictly prohibited and may violate relevant federal and state law.
Listing data comes from My Florida Regional MLS.