English / Español / Русский

Julia Vakulenko - Broker -

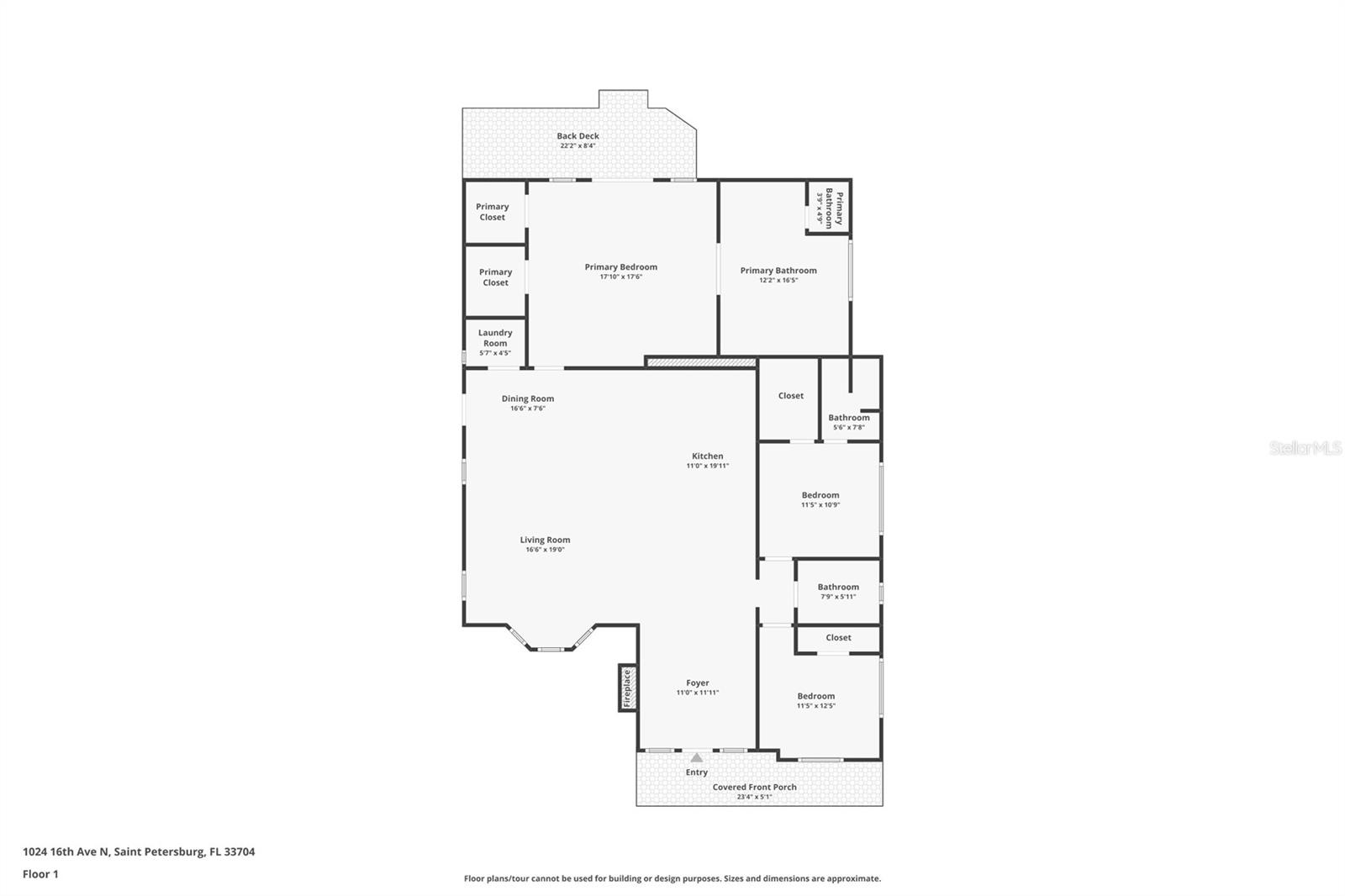
TB8487002 TB8487002 TB8487002 TB8487002 TB8487002 TB8487002 TB8487002 TB8487002 TB8487002 TB8487002 TB8487002 TB8487002 TB8487002 TB8487002 TB8487002 TB8487002 TB8487002 Main Primary TB8487002 TB8487002 Main Primary Bath TB8487002 TB8487002 TB8487002 TB8487002 TB8487002 Hall bath in main home Guest bedroom in Main home (older picture - now used as office) Hall bath in main home TB8487002 Second "primary" in main home. This was the original primary in 1919. Now used differently and doesn't look like this as this is an older picture. Bath in the other "primary" bedroom. En Suite. French doors leading to back deck and apartments TB8487002 TB8487002 TB8487002 TB8487002 TB8487002 Covered porch for apartments Upstairs apartment that has 2 bedrooms Upstairs apt Upstairs apt Upstairs apt Upstairs apt bath Studio TB8487002 TB8487002 TB8487002 TB8487002 TB8487002 Main home floorplan TB8487002
Loading map ...
Loading map ...

1024 16TH AVE N, ST PETERSBURG, 33704

  • $1,100,000
  • 6 Beds, 5 Baths , 3,349 Sq.Ft
  • County: Pinellas
  • Subdivision: HILCREST


Property highlights

  • MLS#: TB8487002
  • 6,351.00 lot size Sq.Ft.
  • Year built: 1919
  • Parking spaces: 1

Property Overview

Welcome to your dream cottage in beautiful Euclid neighborhood of St. Pete! This beautifully renovated bungalow in the highly sought-after Euclid/St. Paul’s neighborhood, offering a rare combination of charm, modern updates, and exceptional income potential. Situated on picturesque brick streets with no flood insurance required, this property includes a 3-bedroom, 3-bath main residence, a 2-bedroom garage apartment, and a private mother-in-law suite/studio.

The 2,062 sq ft main home features an open-concept layout with soaring ceilings and abundant natural light. Fully renovated in 2017, it showcases high-end finishes throughout, including a stunning kitchen with quartz countertops, breakfast bar seating, and seamless flow into the living and dining areas. The spacious primary suite offers dual walk-in closets and a luxurious en-suite bath complete with a spa tub and separate rain shower.

French doors lead to a lush, tropical backyard oasis with a wraparound deck—perfect for morning coffee or relaxing evenings. Above the garage, the approximately 891 sq ft apartment spans the entire second level and includes 2 bedrooms and 1 bath, while the lower level features a private mother-in-law suite—ideal for guests or rental income opportunities.

With plenty of parking including 3 off street spaces, a 1 car garage, and a very quiet street that always has spots for cars, you will experience the charm of neighborhood living that is walking distance to shopping and downtown, but with plenty of room to spread out and enjoy the outdoors and your home.

Located just minutes from downtown St. Petersburg, this home offers easy access to museums, dining, and entertainment. Enjoy a short stroll to Crescent Lake and take in the beauty of one of the area’s most charming neighborhoods.

Rental info: Main house rents for $4,200 and the lease ends 6/30
Studio is vacant and was renting up until 10/2025 for $1,350
Upstairs 2 BR apt rents for $1,850 and that lease expires Sept 6, 2026
TOTAL RENT $7,400 with ability to increase with new tenants

Driving directions : From I-275, take Exit 23A (5th Ave N) heading east. Turn left onto Dr. Martin Luther King Jr. St N, then left onto 16th Ave N to the property on the left.

Property Features

Rooms Dimension Description
Primary Bedroom 2 First level
Primary Bedroom 2 First level
Bedroom 3 First level
Garage Apartment First level
Garage Apartment Second level
Garage Apartment Second level
Living Room First level , Wood
Kitchen First level , Wood

Interior Features

  • Ceiling Fans(s)
  • Coffered Ceiling(s)
  • Crown Molding
  • Eat-in Kitchen
  • High Ceilings
  • Kitchen/Family Room Combo
  • Living Room/Dining Room Combo
  • Open Floorplan
  • Primary Bedroom Main Floor
  • Solid Surface Counters
  • Solid Wood Cabinets
  • Split Bedroom
  • Stone Counters
  • Tray Ceiling(s)
  • Vaulted Ceiling(s)
  • Walk-In Closet(s)

Appliances

  • Dishwasher
  • Disposal
  • Dryer
  • Gas Water Heater
  • Microwave
  • Range
  • Refrigerator
  • Tankless Water Heater
  • Washer
  • Water Purifier

Heating

  • Central
  • Electric
  • Heat Pump
  • Natural Gas

Laundry features

  • Inside
  • Other

Air Conditioning

  • Central Air

Fireplace

  • Decorative
  • Family Room

Floor Covering

  • Ceramic Tile
  • Hardwood
  • Laminate
  • Wood

Utilities

  • BB/HS Internet Available
  • Cable Connected
  • Electricity Connected
  • Natural Gas Connected
  • Public
  • Water Connected

Exterior features

  • French Doors
  • Rain Gutters
  • Sidewalk

Parking features

  • Driveway
  • Garage Door Opener
  • Garage Faces Rear
  • On Street
  • Parking Pad

Patio and porch features

  • Covered
  • Deck
  • Front Porch
  • Rear Porch

Architectural Style

  • Bungalow

Construction Materials

  • Frame
  • Wood Siding

Other Structures

  • Guest House

Road Surface Type

  • Asphalt

Property Condition

  • Completed

Roof

  • Shingle

Foundation

  • Crawlspace

Vegetation

  • Mature Landscaping

Lot Features

  • Landscaped
  • Sidewalk

School Information


Listing information courtesy of COMPASS FLORIDA LLC

All listing information is deemed reliable but not guaranteed and should be independently verified through personal inspection by appropriate professionals. Listings displayed on this website may be subject to prior sale or removal from sale; availability of any listing should always be independently verified.
Listing information is provided for consumer personal, non-commercial use, solely to identify potential properties for potential purchase; all other use is strictly prohibited and may violate relevant federal and state law.
Listing data comes from My Florida Regional MLS.