English / Español / Русский

Julia Vakulenko - Broker -

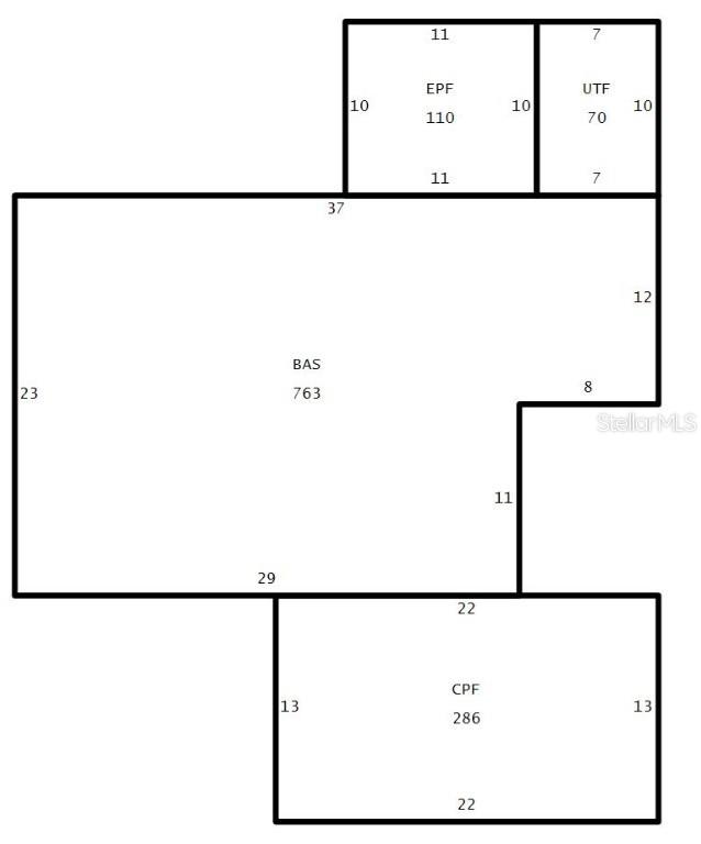
HOME SWEET HOME! Remodeled and ready for making some new family memories! WELCOME HOME TO 5501 96th Avenue... Plenty of Parking... Ideal for a camper, boater or someone who has a work trailer they prefer to store at home. Great Side Yard for additional parking and with a few additions to the backyard, you could have wonderful family gatherings. This covered carport is under the shingle roof of the house.  The 286sf could be a great addition to this home! 286sf of covered outdoor space! WECOMING HOME! VIRTUALLY STAGED Living Room.  Open to Kitchen/Dining Area.  This is a great entertaining space Bedrooms/Bath to the left, 110sf BONUS room straight ahead. Light & Bright Living Room Bring in the Natural Light VIRTUALLY STAGED Dining Area Dining Area Dining - BONUS ROOM - Kitchen Inside Laundry/Utility Room.  Bonus Room on the other side. VIRTUALLY STAGED 110sf BONUS ROOM This could be an office, kids playroom, workout room or a few changes could make this a third bedroom. 110sf BONUS ROOM, in addition to the square footage shown in public record. Very inviting kitchen window! Open Living/Dining/ Kitchen.  Great for families or entertaining Updated Soft Close Kitchen Cabinets Love the Lighting.  It makes this kitchen a pleasure to prepare meals. Remodeled bathroom Remodeled bathroom Remodeled bathroom.  Linen closet just outside the door. Remodeled bathroom VIRTUALLY STAGED.  Primary Bedroom.  Love the Natural Light Primary Bedroom Primary Bedroom 2nd Bedroom.  Love the Natural Light! 2nd Bedroom Second Bedroom Inside Utility/Laundry Room. Great side yard for camper, boat or work trailer. Backyard has a shed.  It would be fun to build a covered patio with an area for your grill for family gatherings! Pinellas County Footprint for total square footage.  EPF & UTF both have central a/c.  CPF is additional square footage that could be closed in one day as an addition to the home. More details of interior footprint.
Loading map ...
Loading map ...

5501 96TH AVE N, PINELLAS PARK, 33782



Property highlights

  • MLS#: TB8486652
  • 5,401.00 lot size Sq.Ft.
  • Year built: 1959
  • Carport spaces: 1

Property Overview

Welcome to 5501 96th Ave N, Pinellas Park, FL 33782 — a beautifully updated and meticulously maintained home, ideally located in a quiet neighborhood between the Gulf beaches and vibrant downtown St. Petersburg.

This charming residence features two spacious bedrooms with generous closets and a newly renovated bathroom. The updated kitchen showcases stunning quartz countertops and modern finishes, creating a bright, functional space for cooking and gathering.

Just off the main living area, a cozy den/bonus space with a built-in countertop bar offers flexibility for entertaining, relaxing, or working from home. The den and laundry room provide approximately 180 sq ft of additional space, enhancing everyday living.

Throughout the home, enjoy a stylish blend of tile and luxury vinyl plank flooring, along with the convenience of an indoor laundry room with washer and dryer included.

Step outside to a large covered front porch, perfect for morning coffee or evening relaxation. Already under the main roofline, this space offers potential to be enclosed for additional living area.

The property also features an oversized driveway and side yard with room for a boat or trailer, plus a backyard storage shed. The backyard offers great potential for creating a private outdoor entertaining or grilling space.

Location is everything — just minutes to Indian Rocks Beach, Madeira Beach, and Treasure Island, as well as nearby parks, recreation, and the Pinellas Trail. Enjoy easy access to downtown St. Petersburg’s waterfront, dining, arts, and entertainment, along with shopping and everyday conveniences throughout Pinellas County.

Driving directions : East to Park Blvd ? left (east) on Park Blvd ? left (north) on 49th St ? right (east) on 96th Ave ? 5501.

Property Features

Rooms Dimension Description
Primary Bedroom 12x11 First level , Luxury Vinyl , Ceiling Fan(s)
Bedroom 2 10x10 First level , Luxury Vinyl
Living Room 12x12 First level , Ceramic Tile , Ceiling Fan(s)
Kitchen 10x9 First level , Ceramic Tile , Stone Counters
Bonus Room 11x10 First level , Luxury Vinyl

Interior Features

  • Ceiling Fans(s)
  • Kitchen/Family Room Combo
  • Living Room/Dining Room Combo
  • Open Floorplan
  • Primary Bedroom Main Floor
  • Stone Counters
  • Thermostat
  • Window Treatments

Appliances

  • Dishwasher
  • Dryer
  • Electric Water Heater
  • Microwave
  • Range
  • Refrigerator
  • Washer

Heating

  • Central

Laundry features

  • Electric Dryer Hookup
  • Inside
  • Laundry Room
  • Washer Hookup

Air Conditioning

  • Central Air

Floor Covering

  • Ceramic Tile
  • Luxury Vinyl

Utilities

  • Cable Connected
  • Electricity Connected
  • Sewer Connected
  • Water Connected

Exterior features

  • Private Mailbox
  • Sidewalk
  • Storage

Parking features

  • Boat
  • Covered
  • Driveway
  • Oversized
  • RV Access/Parking

Patio and porch features

  • Covered

Construction Materials

  • Block

Other Structures

  • Shed(s)

Road Surface Type

  • Asphalt

Roof

  • Shingle

Foundation

  • Slab

Listing information courtesy of CHARLES RUTENBERG REALTY INC

All listing information is deemed reliable but not guaranteed and should be independently verified through personal inspection by appropriate professionals. Listings displayed on this website may be subject to prior sale or removal from sale; availability of any listing should always be independently verified.
Listing information is provided for consumer personal, non-commercial use, solely to identify potential properties for potential purchase; all other use is strictly prohibited and may violate relevant federal and state law.
Listing data comes from My Florida Regional MLS.