English / Español / Русский

Julia Vakulenko - Broker -

Unit 1023 B is located to the right, in the lighter orange building, 2nd floor. Waterfront community! A short boat or kayak ride to the open bay! Private 2 car garages 2 reserved parking spaces, in front of your garages All the docks are being rebuilt, expected to be completed by mid summer. TB8464666 TB8464666 TB8464666 TB8464666 TB8464666 TB8464666 TB8464666 Powder bath downstairs, acorss from stairs TB8464666 TB8464666 TB8464666 TB8464666 TB8464666 TB8464666 TB8464666 TB8464666 TB8464666 TB8464666 TB8464666 TB8464666 TB8464666 Laudry room located upstairs adjacent to bedrooms TB8464666 TB8464666 Updated primary bath TB8464666 TB8464666 TB8464666 TB8464666 TB8464666 Waterfront community! TB8464666 TB8464666 Luxury pool area! TB8464666 TB8464666 TB8464666 TB8464666 TB8464666 Car wash station Inside the clubhouse TB8464666 TB8464666 TB8464666 Fitness room TB8464666 TB8464666 Billarads room Board room Clubhouse screened porch area with BBQ Gazebo and BBQ grill! Paths along the canal and bay TB8464666 TB8464666 TB8464666
Loading map ...
Loading map ...

2749 VIA CIPRIANI #1023B, CLEARWATER, 33764



Property highlights

  • MLS#: TB8464666
  • 1,595,883.00 lot size Sq.Ft.
  • Year built: 2002
  • Floor: 2
  • Parking spaces: 2
  • Pool: Community pool
  • Listed: 01/15/2026
  • Taxes: $5,587.97
  • HOA fees (monthly): $1,465.22
  • Average Monthly Fees (not including CDD, if any): $1,465.22
  • Maintenance fee includes: Guard - 24 Hour, Escrow Reserves Fund, Insurance, Maintenance Structure, Maintenance Grounds, Management and Pool
  • Building Name: BUILDING 8
  • Virtual Tour

Property Overview

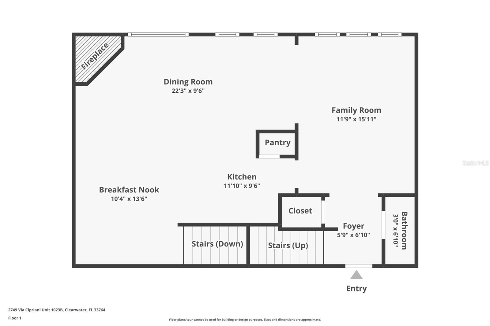
Welcome to 2749 Via Cipriani, Unit 1023B, where comfort meets convenience in guard/gated Grand Bellagio at Baywatch in sunny Clearwater, FL. Set along a canal leading to a short boat ride or kayak paddle to Old Tampa Bay! This updated spacious 1,625 square-foot 2 story condo offers 2-bedrooms, 2.5-baths, the privacy of no neighbors above or below and comes with a 2-car garage plus two additional assigned parking spaces. Inside, you'll find stylish updates throughout, including newer LVP flooring, a refreshed kitchen with modern granite countertops, gas stove, and updated stainless appliances. The long breakfast bar would be ideal for buffet style appetizers, dinner or brunch! The cozy gas fireplace adds a warm touch to the downstairs living space, while the wall of windows lets in diffused soft Florida sunshine making the space bright and airy while you watch the palm trees sway! Bathrooms have been beautifully remodeled. Located in a prime spot, you're just a short boat ride or kayak paddle to the serene waters of Old Tampa Bay! Boating enthusiasts will love the easy access to the water for your maritime adventures. Plus, the open dock is currently being rebuilt by the HOA, promising enhanced waterfront amenities for your enjoyment. The exterior of the buildings have been refurbished, plus new roofs were added and this owner installed new windows in this unit! Enjoy a BBQ for a casual dinner under the gazebo with views of the open water! Located in a desirable area of Clearwater, with nearby shops and restaurants, 8.5 miles to the beaches, 4 miles to St Pete airport and approx. 14 miles the Tampa airport, this property is perfect for those seeking an active lifestyle with all the benefits of community living as a second home or as your primary residence. Living in this community is like being on a permanent vacation. The amenities are top-notch, starting with a stunning clubhouse that offers a fitness center, a billiards room to challenge friends, and a meeting room, and indoor and outdoor event spaces. Imagine lounging by the pool, nestled along the canal, soaking up the sun in one of the cabanas, or getting active on the tennis courts. Whether you’re entertaining guests in your warm, fireplace-adorned living space or enjoying the community’s luxurious features, this unit offers a lifestyle of both relaxation and activity. A truly special place to call home, it’s ready for you to move in and create lasting memories. There’s also a car wash station, a dog park, sand volleyball court, playground and a walking trail along the canal. Schedule a tour today and experience firsthand what makes this property a standout choice in Clearwater! Don’t miss out on this unique opportunity to own a slice of Florida paradise at an incredible value!

Driving directions : From US 19, take exit for Nursery Rd/Bellair Rd, continue on US 19 Frontage Rd, turn east onto Bellair Rd, approach guarded gate to be given access, thru gate stay left to Via Cipriani, follow Via Cipriani around the bend toward Building 10, building is on your right, 2749 Via Cipriani, take staircase on the right to 2nd floor to Unit 1023B.

Property Features

Rooms Dimension Description
Great Room 12x16 Second level , Vinyl
Dining Room 10x22 Second level , Vinyl
Kitchen 10x12 Second level , Vinyl
Dinette 10x14 Second level , Vinyl
Primary Bedroom 16x16 Third level , Tile
Primary Bathroom 10x13 Third level , Porcelain Tile , Double Vanity , Tub with Separate Shower Stall
Bedroom 2 Third level , Vinyl
Bathroom 2 6x8 Third level , Porcelain Tile , Tub With Shower

Interior Features

  • Ceiling Fans(s)
  • Stone Counters
  • Walk-In Closet(s)

Appliances

  • Dishwasher
  • Microwave
  • Range
  • Refrigerator

Heating

  • Central

Laundry features

  • Inside

Air Conditioning

  • Central Air

Fireplace

  • Family Room
  • Gas

Floor Covering

  • Tile
  • Vinyl

Utilities

  • BB/HS Internet Available
  • Electricity Connected
  • Sewer Connected

Exterior features

  • Sidewalk

Pets restrictions

  • Verify pet restrictions with condo association
  • 2 pet(s) allowed
  • Large (61-100 Lbs.)

Community Features

  • Buyer Approval Required
  • Clubhouse
  • Fitness Center
  • Gated Community - Guard
  • Playground
  • Pool
  • Tennis Court(s)

Construction Materials

  • Stucco
  • Frame

Road Surface Type

  • Paved

Roof

  • Tile

Foundation

  • Slab

Listing information courtesy of COMPASS FLORIDA LLC

All listing information is deemed reliable but not guaranteed and should be independently verified through personal inspection by appropriate professionals. Listings displayed on this website may be subject to prior sale or removal from sale; availability of any listing should always be independently verified.
Listing information is provided for consumer personal, non-commercial use, solely to identify potential properties for potential purchase; all other use is strictly prohibited and may violate relevant federal and state law.
Listing data comes from My Florida Regional MLS.