English / Español / Русский

Julia Vakulenko - Broker -

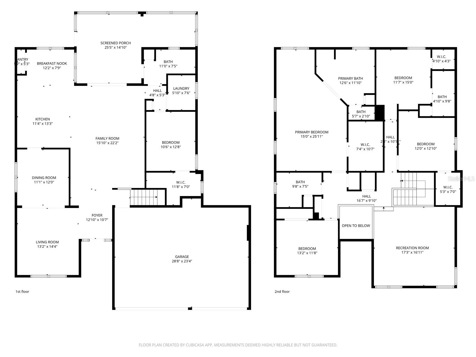
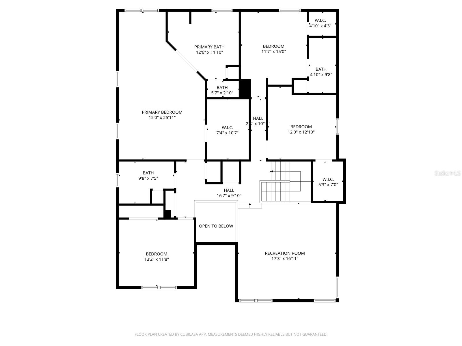
5 bedrooms, 4 baths, and an abundance of spacious living areas. kitchen featuring extensive cabinetry, ample counter space, a sunny breakfast nook, and a convenient breakfast bar. Family room open to the kitchen making entertaining a breeze. oversized main suite offers plenty of room for a sitting area, a large walk-in closet, and a luxurious bath complete with a garden tub, separate shower, and dual sinks. Fully glassed-in Florida Room, featuring double-pane sliding windows with screens. Step through the two-story foyer into bright, open spaces that include a formal living and dining room, an open family room, and an upgraded kitchen. Living room on the left of the Foyer with connection to the Dining room. TB8450953 TB8450953 Dining Room just off the kitchen. 1st Floor Family room is open to the kitchen. TB8450953 TB8450953 TB8450953 Eat in area for casual dining in the kitchen overlooking the serene pond view. Enjoy outdoor living in a fully glassed-in Florida Room, featuring double-pane sliding windows. 1st floor secondary bedroom with enormous walk-in closet. First floor full ADA compliant bathroom adjacent the first floor bedroom with walk-in closet making this a perfect guest area or multi-generation living. Let's take the tour upstairs, Upstairs there is a large Bonus Room, the primary suite with bathroom, a secondary suite with a bathroom, and 2 additional bedrooms sharing a full bathroom. 2nd floor Bonus room 2nd floor Bonus room is steps from the top of the staircase and has allows you to  peek into the first floor foyer. The oversized primary suite offers a large walk-in closet and a luxurious attached bathroom. The oversized main suite offers plenty of room for a sitting area Main suite bathroom Main suite bathroom Main suite bathroom has split vanities and a 2 person tub Secondary Bedroom #2  has an attached  bathroom with a tub/shower and a large walk-in closet. 2nd bedroom suite's attached bathroom upstairs Secondary Bedroom #3 with large built in closet. Shared full bathroom upstairs has a tub/shower combination and a large vanity with lots of storage. Secondary Bedroom #4 with large walk in closet. Buyers can choose the color of shingles for a brand-new roof to be installed prior to closing for years of maintenance free living. Security system has been wired and is ready to use as well as an irrigation system to keep your landscaping beautiful. TB8450953 Ideal backdrop for cookouts, quiet relaxation, and the occasional visit from a heron. TB8450953 Take in the serene water view. River Bend gives you resort-style perks without the price tag: fitness center, oversized pool, playgrounds, pickleball, and basketball courts, and a fenced dog park. Commuting is easy with quick access to I-75 and US-41, putting Tampa, MacDill, beaches, shopping, dining, hospitals, and EG Simmons Park within reach. Low HOA fees. TB8450953 TB8450953 TB8450953
Loading map ...
Loading map ...

608 WASHITA STONE DR, RUSKIN, 33570



Property highlights

  • MLS#: TB8450953
  • 6,050.00 lot size Sq.Ft.
  • Year built: 2007
  • Parking spaces: 3
  • Pool: Community pool
  • Listed: 11/26/2025
  • Taxes: $5,757.60
  • Annual CDD fee (inc. in Taxes): $2,658.00
  • HOA fees (monthly): $20.83
  • Average Monthly Fees (not including CDD, if any): $20.83
  • Virtual Tour

Property Overview

BACK ON THE MARKET 2/12 (BUYERS' FINANCING FELL THROUGH, BUYER LYING ABOUT A JOB). NEW ROOF (2026), NEW HOT WATER HEATER( 2026), VA Appraisal completed already. NO backyard neighbors, and scenic water views with 3400 sq feet of living space. QUICK OCCUPANCY IF NEEDED
This impressive home offers 5 bedrooms, 4 baths, and ample living space. Step through the two-story foyer into bright, open spaces, including a formal living room and dining room, an open family room, and an upgraded kitchen with extensive cabinetry, ample counter space, a sunny breakfast nook, and a convenient breakfast bar.
There is a large bedroom with access to a full, ADA-compliant bathroom on the first floor—ideal for a guest suite or multigenerational living.


Upstairs, a bonus media room provides the perfect opportunity to create your own personalized space. The oversized main suite offers plenty of room for a sitting area, a large walk-in closet, and a luxurious bath complete with a garden tub, separate shower, and dual sinks. There are 3 secondary bedrooms upstairs: 2 have large walk-in closets, 1 has an ensuite bathroom with a tub/shower combination and all 3 are generously sized.


Enjoy outdoor living in a fully glassed-in Florida Room, featuring double-pane sliding windows. Take in the serene water view—an ideal backdrop for cookouts, quiet relaxation, and the occasional visit from a heron. A 3-car garage adds valuable storage and parking options and the first floor laundry room has a handy utility sink. Hurricane shutters are stored in the garage for peace of mind. The security system has been wired and is ready to use as well as an irrigation system to keep your landscaping beautiful. Buyers can choose the color of shingles for a brand-new roof to be installed prior to closing for years of maintenance free living.
River Bend gives you resort-style perks without the price tag: fitness center, oversized pool, playgrounds, pickleball, and basketball courts, and a fenced dog park. Commuting is easy with quick access to I-75 and US-41, putting Tampa, MacDill, beaches, shopping, dining, hospitals, and EG Simmons Park within reach. Low HOA fees. High lifestyle value.

Driving directions : I75 to SR 674, turn left on 6th street SE, then go right on 21st Ave SE, left on River Briar Blvd, right on Dakota Rock Dr, then left on Washita Stone Drive.

Property Features

Rooms Dimension Description
Living Room First level
Dining Room First level
Kitchen First level
Family Room First level
Bedroom 2 First level , Carpet , Ceiling Fan(s)
Primary Bedroom Second level , Carpet , Ceiling Fan(s) , Double Vanity , En Suite Bathroom , Garden Bath , Tub with Separate Shower Stall , Water Closet/Priv Toilet , Window/Skylight in Bath
Bedroom 3 Second level , Carpet , Ceiling Fan(s) , En Suite Bathroom , Tub With Shower
Bedroom 4 Second level , Carpet
Bathroom 5 Second level , Carpet , Ceiling Fan(s)
Bonus Room Second level , Carpet , Ceiling Fan(s)

Interior Features

  • Ceiling Fans(s)
  • Thermostat

Appliances

  • Dishwasher
  • Disposal
  • Electric Water Heater
  • Microwave
  • Range
  • Refrigerator

Heating

  • Central
  • Electric

Laundry features

  • Laundry Room

Air Conditioning

  • Central Air

Floor Covering

  • Carpet
  • Tile

Utilities

  • BB/HS Internet Available
  • Cable Available
  • Electricity Connected
  • Fire Hydrant
  • Sewer Connected
  • Water Connected

Exterior features

  • Private Mailbox
  • Rain Gutters
  • Sidewalk

Parking features

  • Driveway
  • Garage Door Opener

View

  • Water

Patio and porch features

  • Covered
  • Enclosed
  • Front Porch
  • Rear Porch

Pets restrictions

  • Confirm with HOA for Pet Restrictions if any.

Architectural Style

  • Contemporary

Community Features

  • Clubhouse
  • Deed Restrictions
  • Dog Park
  • Fitness Center
  • Park
  • Playground
  • Pool
  • Sidewalks
  • Street Lights

Security Features

  • Security System Owned
  • Smoke Detector(s)

Construction Materials

  • Block
  • Concrete
  • Frame

Road Surface Type

  • Asphalt
  • Paved

Property Condition

  • Completed

Roof

  • Shingle

Foundation

  • Slab

Vegetation

  • Trees/Landscaped

Lot Features

  • In County
  • Landscaped
  • Level
  • Sidewalk
  • Paved

Listing information courtesy of KELLER WILLIAMS SUBURBAN TAMPA

All listing information is deemed reliable but not guaranteed and should be independently verified through personal inspection by appropriate professionals. Listings displayed on this website may be subject to prior sale or removal from sale; availability of any listing should always be independently verified.
Listing information is provided for consumer personal, non-commercial use, solely to identify potential properties for potential purchase; all other use is strictly prohibited and may violate relevant federal and state law.
Listing data comes from My Florida Regional MLS.