English / Español / Русский

Julia Vakulenko - Broker -

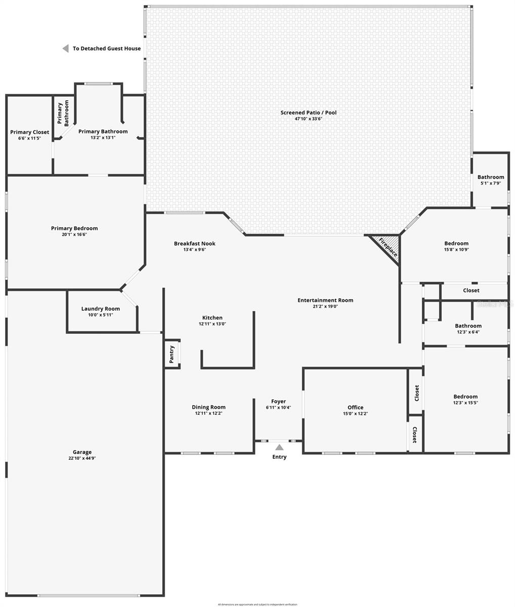
TB8441139 front porch property view garage and parking pad driveway and parking pad. 4 car garage property view kitchen kitchen kitchen kitchen kiitchen breakfast nook breakfast nook formal dining room formal dining room formal dining room foyer bedroom/bonus room bedroom/Bonus room living room living room living room living room living room bedroom bedroom bedroom bedroom bedroom main guest bathroom main guest bath bedroom bedroom bedroom pool bath laundry room primary bedroom primary closet primary bathroom primary bathroom primary bathroom primary bathroom primary shower pool patio pool patio pool pool pool pool back yard back yard detached In law detached In law Kitchen detached In law kitchen detached In law detached In law Detached In-law detached In law Bedroom detached In law Bathroom detached In law bathroom detached In law bedroom detached In law closet detached In law garage detached in law Garage detached in law yard shed yard main house detached in law TB8441139
Loading map ...
Loading map ...

10314 LAMSON RD, DADE CITY, 33525

  • $899,900
  • Price changed 11/10/2025 from $925,000, -2.71%
  • 4 Beds, 3 Baths , 2,691 Sq.Ft
  • County: Pasco
  • Subdivision: ZEPHYRHILLS COLONY CO


Property highlights

  • MLS#: TB8441139
  • 112,820.00 lot size Sq.Ft.
  • Year built: 2003
  • Parking spaces: 4
  • Pool: Private pool

Property Overview

Spacious 4-Bedroom 3 bath 4 car garage Pool Home offers 2691 square feet of living space but wait there is more a detached 1256 sqft In-Law with full kitchen and 1 car garage all of this is situated on 2.59 Acres.

Welcome to your private retreat! Nestled on a sprawling 2.59-acre lot zoned Agricultural for horses, cows, chickens etc. This beautifully maintained 4-bedroom, 3-bathroom home offers the perfect blend of comfort, functionality, and outdoor living. From the moment you step inside, you'll be captivated by the open floor plan, ideal for entertaining and everyday living.

The heart of the home features a cozy living room with a charming fireplace, seamlessly flowing into the formal dining room adorned with rich hardwood flooring. The split bedroom layout ensures privacy, with the primary suite boasting hardwood floors and a tranquil view of the backyard oasis.

Step outside to your screen-enclosed, solar-heated pool—perfect for year-round enjoyment. The expansive backyard is fully enclosed with durable PVC vinyl fencing and includes a large storage shed for all your tools and toys.

Need space for guests or extended family? The detached 1-bedroom, 1-bath in-law with full kitchen offers comfort and independence with its own private entrance and car garage. Once inside you will love the open floor plan and high ceilings throughout. Perfect for a pool house, in-laws or even an office for those who work from home.

This property is a rare find—offering space, serenity, and versatility all in one. Don’t miss your chance to own this slice of paradise!

Driving directions : US WHY 301 to Townsend Rd, to Right on Lamson follow to house, see directional signs.

Property Features

Rooms Dimension Description
Bathroom 1 First level , Tile , Tub With Shower
Dining Room First level , Wood
Bedroom 1 First level
Bathroom 2 First level , Tile , Tub With Shower
Kitchen First level , Tile
Utility Room First level , Tile
Primary Bedroom First level , Wood
Primary Bathroom First level , Tile , Double Vanity , Garden Bath , Tub with Separate Shower Stall
Living Room First level , Tile
Bedroom 4 First level , Tile

Interior Features

  • Cathedral Ceiling(s)
  • Ceiling Fans(s)
  • Eat-in Kitchen
  • Open Floorplan
  • Solid Surface Counters
  • Thermostat

Appliances

  • Dishwasher
  • Electric Water Heater
  • Microwave
  • Range
  • Refrigerator

Heating

  • Central
  • Electric

Laundry features

  • Inside
  • Laundry Room

Air Conditioning

  • Central Air

Fireplace

  • Family Room

Floor Covering

  • Tile
  • Wood

Utilities

  • BB/HS Internet Available
  • Cable Available
  • Electricity Connected

Exterior features

  • Sidewalk

Pool features

  • Child Safety Fence
  • Gunite
  • Heated
  • In Ground
  • Screen Enclosure

Parking features

  • Driveway
  • Garage Door Opener
  • Garage Faces Side
  • Oversized

View

  • Pool

Patio and porch features

  • Front Porch
  • Patio
  • Screened

Architectural Style

  • Ranch

Construction Materials

  • Stucco

Road Surface Type

  • Limerock
  • Paved

Roof

  • Shingle

Foundation

  • Slab

Vegetation

  • Mature Landscaping
  • Trees/Landscaped

Lot Features

  • In County

School Information


Listing information courtesy of ELITE BROKERS, LLC

All listing information is deemed reliable but not guaranteed and should be independently verified through personal inspection by appropriate professionals. Listings displayed on this website may be subject to prior sale or removal from sale; availability of any listing should always be independently verified.
Listing information is provided for consumer personal, non-commercial use, solely to identify potential properties for potential purchase; all other use is strictly prohibited and may violate relevant federal and state law.
Listing data comes from My Florida Regional MLS.