
3719 FLORAMAR TER
New Port Richey / Flor-A-Mar Спільнота
3, 2, 1,538ft²
MLS#: W7879389
Wake up to panoramic water views and sunlight streaming through every window in this serene coastal retreat on Oyster Bayou!
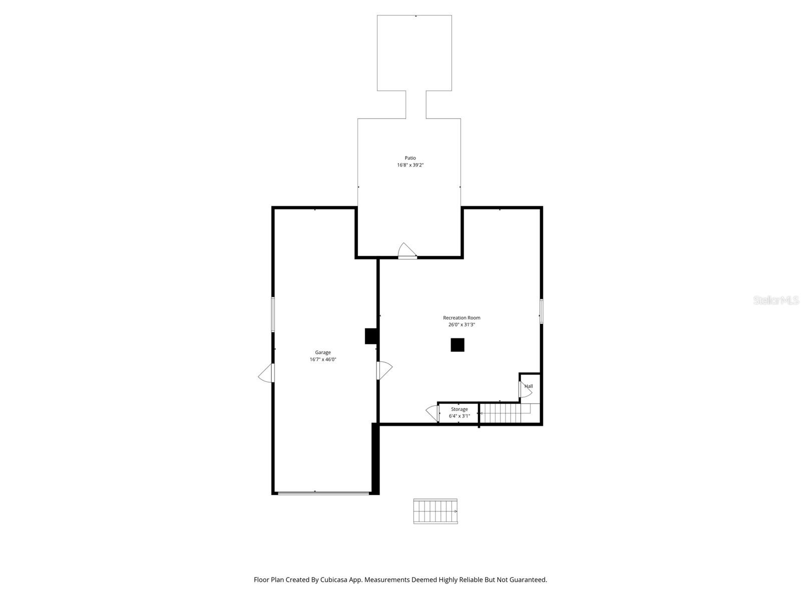
This beautifully maintained home blends charm and comfort, featuring an open-concept layout - perfect for both everyday living and effortless entertaining. Step out the French Doors to your enclosed sunroom — ideal for morning coffee, weekend gatherings, or simply soaking in the views of playing dolphins and manatee's, as well as, those gorgeous Gulf Sunsets. Unique architectural details throughout include; hardwood floors and updated finishes which add warmth and character. Whether you’re seeking a peaceful escape or a place to host unforgettable moments, this home provides the best that Florida has to offer. Built in 2001, and FEMA approved, it has 3 bedrooms and 2 full baths set up in a split floor plan. The first floor is being used as a recreation room, (pool table stays with the home), and also has a separate tandem 2 car garage. New A/C and Roof in 2022.- But Wait! The outdoor space is truly the gem of this location. Very deep back yard with an open air pergola, quaint sitting areas, a dock for fishing or wildlife watching, and magnificent water views. In less than a minute you are in the Gulf for a day of boating. This home would also make a perfect short term rental with no leasing restrictions. Close to shopping and medical facilities. Just minutes to Green Key or a short golf cart ride to Downtown New Port Richey to enjoy the arts, trendy shops and bistro's.
Driving directions : Hwy 19 to Green Key, West to Beach Manor
Rooms | Dimension | Description |
---|---|---|
Living Room | 16x17 | Second level , Wood |
Kitchen | 13x14 | Second level , Wood , Closet Pantry |
Primary Bedroom | 13x19 | Second level , Wood , Ceiling Fan(s) |
New Port Richey / Flor-A-Mar Спільнота
3, 2, 1,538ft²
MLS#: W7879389
3, 2, 1,639ft²
MLS#: W7878026
3, 2, 2,024ft²
MLS#: W7876078
New Port Richey / Flor-A-Mar Спільнота
2, 2, 1,839ft²
MLS#: TB8400878