
1800 SALEM CT
5, 3, 3,253ft²
MLS#: TB8371514
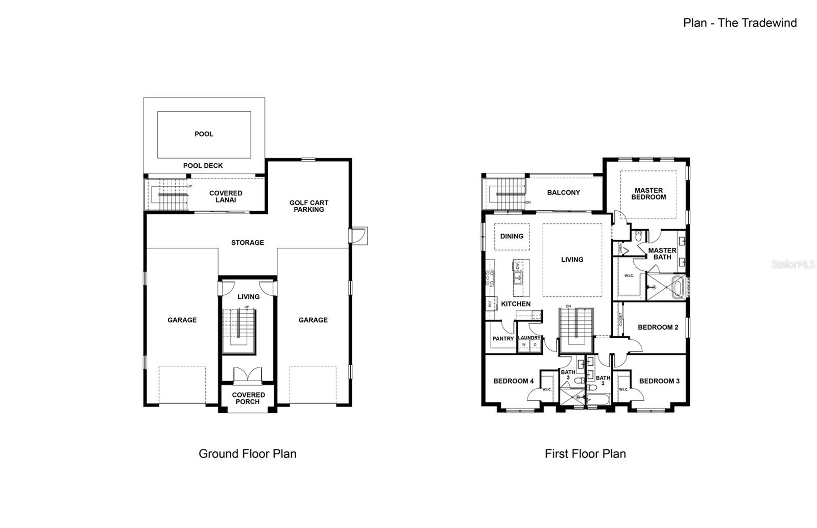
Pre-Construction. To be built. Welcome to brand new construction in delightful Dunedin!! Beautiful two-story home offers the perfect blend of modern design and coastal charm. Built by premier builder DiGiovanni Homes on a pool size home site and upgraded for the most discerning buyer! The first floor features a spacious two-car garage, golf cart parking and ample storage. The main living area upstairs boasts a true open concept floor plan and desirable great room layout. The living area is enormous and wide open to the gourmet kitchen with real wood cabinetry, designer finishes and stainless appliances. Elegant tray ceilings highlight the living and dining space as well as the primary suite. Special architectural accents add to the spacious vibe. The primary suite is a luxurious retreat with an indulgent rear balcony perfect for morning coffee or sunset cocktails. The spa-inspired ensuite boasts a large walk-in shower, water closet, double sinks and a walk-in closet. Endless upgrades throughout the home. Designer choices and magnificent finishes! Fabulous backyard is accented by a covered lanai. It is an ideal space to create your own private oasis! Plenty of room for a pool! A rare find... quality built, brand new construction in sought after Dunedin... the ultimate Florida lifestyle near to downtown and Dunedin's charming streets of restaurants, entertainment, breweries, shopping, endless festivals and of course the famed Gulf Beaches are nearby. Minutes to the Dunedin Causeway, Honeymoon Island and Dunedin Golf Club. Be the first to live in this beautiful home.
Driving directions : From Alt 19 turn west on Day Wood Dr. W, left on Trade Wind Dr. Homesite will be on the left.
Rooms | Dimension | Description |
---|---|---|
Great Room | 16.2x20.1 | Second level |
Kitchen | 12x13 | Second level |
Primary Bedroom | 17x14.6 | Second level , En Suite Bathroom |
5, 3, 3,253ft²
MLS#: TB8371514
4, 3, 2,316ft²
MLS#: TB8427473
4, 3, 3,169ft²
MLS#: TB8386283
3, 3, 1,467ft²
MLS#: TB8369996