English / Español / Русский

Julia Vakulenko - Broker -

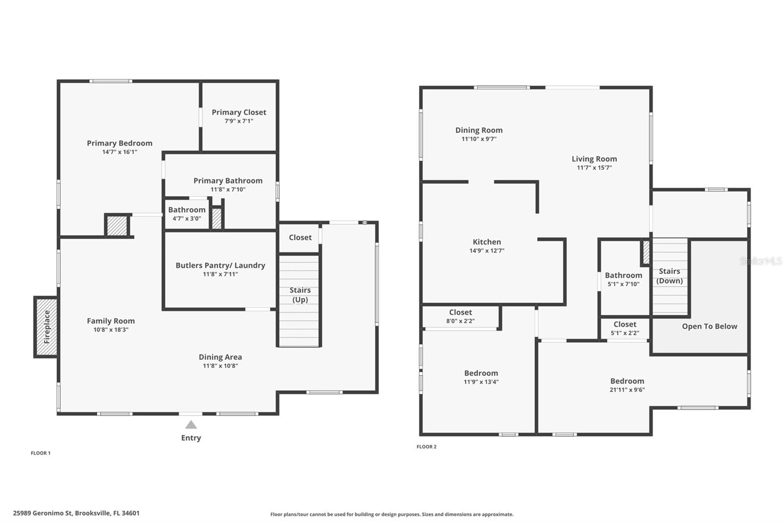
First time to market. Make your homestead dreams come true on 5.09 acres in North Brooksville. Very nice shop/hobby/homeschool-you dream it up.  Perfect for work shop and storing a tractor or vehicle Country roads lead home. Sunset is the best time to be out on the balcony enjoying your favorite beverage Nice big patio for enjoying dinner and relaxing on a cool evening.  Easy to add a screen enclosure to this area. North side of home Aerial view of 29589 Geronimo ST.  Country living at it's best on a paved road, too! Looking south over the Brooksville hills Floor plan, both floors Let's step inside Original 2 story foyer with beautiful dual pane windows letting natural lighting in. Wide staircase leads to full kitchen, dining, living, 2 bedrooms and balcony Downstairs dining or seating area. perfect place for light dinner or for the inlaws/guests Downstairs dining and 3/4 kitchen/laundry TB8431748 TB8431748 Cozy and comfort is calling you to enjoy your wood burning fireplace in the family room, downstairs Family room downstairs Family room and wood burning fireplace Downstairs suite- Downstairs suite TB8431748 Primary Closet Downstairs/primary shower tub bath Downstairs bath TB8431748 3/4 kitchen-no range with laundry 3/4 kitchen with laundry Laundry with 3/4 kitchen Let's go upstairs Top of stairs with small loft perfect for a small desk or seating area Mural showing wildlife above entry Upstairs living room to balcony and dining Dining area to balcony Living room to balcony Living Room Dining area Dining area with beautiful views outside Dining room to kitchen Kitchen and pantry-walk in with automatic lights Kitchen with almost new appliances TB8431748 Corner of kitchen to dining room Walk in pantry-ready for all the canned goods you're going to want to fill with Up hall to beds and bath Upstairs shower bath 2nd Bedroom/ofc/nursery/hobby room/large closet 2nd bedroom/office 2nd bedroom 3rd bedroom 3rd bedroom The best place is on your balcony. You'll not want to leave. Watch the deer from here. Balcony under the oaks-you're going to love it! Balcony looking SW south view south view-large concrete pad-could be tennis courts TB8431748 Perfect to park an RV, toys, play tennis...... South side of home TB8431748 Double carport Carport on west side of home TB8431748 TB8431748 TB8431748 TB8431748 TB8431748 TB8431748 Shop building-what will you do with this fantastic space? Interior of shop Interior of shop TB8431748 East side of lot TB8431748 TB8431748 TB8431748 TB8431748
Loading map ...
Loading map ...

25989 GERONIMO ST, BROOKSVILLE, 34601



Property highlights

  • MLS#: TB8431748
  • 221,720.00 lot size Sq.Ft.
  • Year built: 1976
  • Carport spaces: 2

Property Overview

Tucked away in the rolling hills of North Brooksville, this 5.09-acre haven invites you to slow down and breathe in the country air. Home and Shop in the countryside. From the moment you pass through the gate, you’ll feel the peace and privacy that only a property like this can offer—deer grazing at sunrise, birdsong filling the trees, and wide-open skies that seem to stretch forever. 1gig Spectrum Fiber to the home.This one-owner 2-story home was designed to take in the land around it, with a cozy stone fireplace for cool evenings, French doors that open to a sweeping balcony with panoramic views, and a kitchen ready for your garden-to-table meals. Whether you dream of a weekend hideaway, a simple homestead, or a charming country Airbnb, this property delivers both inspiration and possibility. The following updates have been made over the past 5 years: $50k Pella dual pane double hung windows & vinyl doors, $15k for 2 new HVAC systems-up and down units, $3k new appliances-all kitchen appliances are 1 year old and under warranty,$10k full-house generac generator (still under warranty & can be extended), 250 gallon propane tank, $10k Septic Drainfield replaced, $15k front porch & stairs, $3k soffit & facia replacement, Keyless door entry, $8k shop roof replacement, $20k Front vinyl fencing and gate. Spacious detached shop 32x20 & attached 12' carport is wired for 220v-not active though, it’s practical as well as beautiful—truly a rare chance to create the life you’ve been dreaming of. Black wood fence is the west neighbor's.

Driving directions : From Hwy 41 and Lake Lindsay Rd, go East to North on Daly Rd then doglegs to becoming Cherokee RD to Left on St. House is on north side with white vinyl rail fencing. Coming from North to south just south of Citrus/Hernando Line, go E on Mark Rd, doglegs into S Southpoint then doglegs into Pawnee. Continue south to East/Left on St. House is on N.

Property Features

Rooms Dimension Description
Foyer First level , Vinyl
Dinette 12x11 First level , Vinyl
Family Room 18x11 First level , Carpet , Ceiling Fan(s)
Primary Bedroom 16x15 Basement level , Carpet , Ceiling Fan(s)
Primary Bathroom First level , Ceramic Tile , Tub With Shower
Utility Room 12x8 First level , Vinyl , Ceiling Fan(s)
Living Room 12x16 Second level , Carpet , Ceiling Fan(s)
Dining Room 12x10 Second level , Laminate , Ceiling Fan(s)
Kitchen 15x13 Second level , Vinyl , Ceiling Fan(s) , Walk-In Pantry
Bedroom 2 22x10 Second level , Carpet , Ceiling Fan(s)
Bedroom 3 13x12 Second level , Carpet , Ceiling Fan(s)
Bathroom 2 8x5 Second level , Vinyl , Shower No Tub
Balcony/Porch/Lanai Second level

Interior Features

  • Ceiling Fans(s)
  • Living Room/Dining Room Combo
  • Primary Bedroom Main Floor
  • Split Bedroom
  • Walk-In Closet(s)
  • Window Treatments

Appliances

  • Dishwasher
  • Dryer
  • Electric Water Heater
  • Microwave
  • Range
  • Refrigerator
  • Washer

Heating

  • Central
  • Electric

Laundry features

  • Electric Dryer Hookup
  • Inside

Air Conditioning

  • Central Air

Fireplace

  • Family Room

Floor Covering

  • Carpet
  • Linoleum

Utilities

  • BB/HS Internet Available
  • Electricity Connected
  • Propane
  • Water Connected

Exterior features

  • Balcony
  • French Doors
  • Rain Gutters
  • Sidewalk

Parking features

  • Driveway
  • Off Street
  • Open
  • Parking Pad

View

  • Trees/Woods

Patio and porch features

  • Front Porch
  • Patio

Architectural Style

  • Ranch

Construction Materials

  • Cement Siding
  • Frame

Other Structures

  • Workshop

Road Surface Type

  • Asphalt
  • Gravel

Roof

  • Shingle

Foundation

  • Pillar/Post/Pier
  • Slab

Vegetation

  • Oak Trees
  • Wooded

Lot Features

  • Gentle Sloping
  • In County
  • Private

School Information


Listing information courtesy of BEACHES TO RANCHES REALTY

All listing information is deemed reliable but not guaranteed and should be independently verified through personal inspection by appropriate professionals. Listings displayed on this website may be subject to prior sale or removal from sale; availability of any listing should always be independently verified.
Listing information is provided for consumer personal, non-commercial use, solely to identify potential properties for potential purchase; all other use is strictly prohibited and may violate relevant federal and state law.
Listing data comes from My Florida Regional MLS.