
775 GRAN KAYMEN WAY
4, 2, 2,477ft²
MLS#: TB8431126
Live Where Every Day Feels Like a Vacation! This stunning waterfront home with private 12,000 lb. boat lift and dock (with water and electric) offers direct bay access right from your backyard—the ultimate setting for boating, fishing, and sunset cruises. Completely remodeled in 2024, this coastal retreat combines luxury, comfort, and peace of mind. Inside, you’ll find elegant ceramic tile flooring throughout, upgraded lighting, and modern finishes. The chef’s kitchen is a true showpiece, featuring solid wood cabinetry, granite countertops, high-end appliances, and a spacious walk-in pantry. The owner’s suite is designed for relaxation, with sliding doors leading to the private pool, a spa-like en suite bath, and a walk-in closet. Every bathroom has been beautifully updated, and all doors and trim replaced for a fresh, contemporary feel. Outdoors, enjoy your sparkling private pool with new pavers and French drain, or entertain on the expansive deck overlooking the water. The garage adds to the appeal with new epoxy flooring for style, durability, and easy maintenance. Major upgrades include a new roof (2023) and A/C (2022). Ideally located just minutes from waterfront dining, shopping, nature parks, the Manatee Center, and Gulf beaches, this home delivers the very best of Florida waterfront living.
Driving directions : Hwy 41 to Apollo Beach Blvd., West to Lake Sunrise, Left on Bal Harbour and left on Cocoa Lane to house.
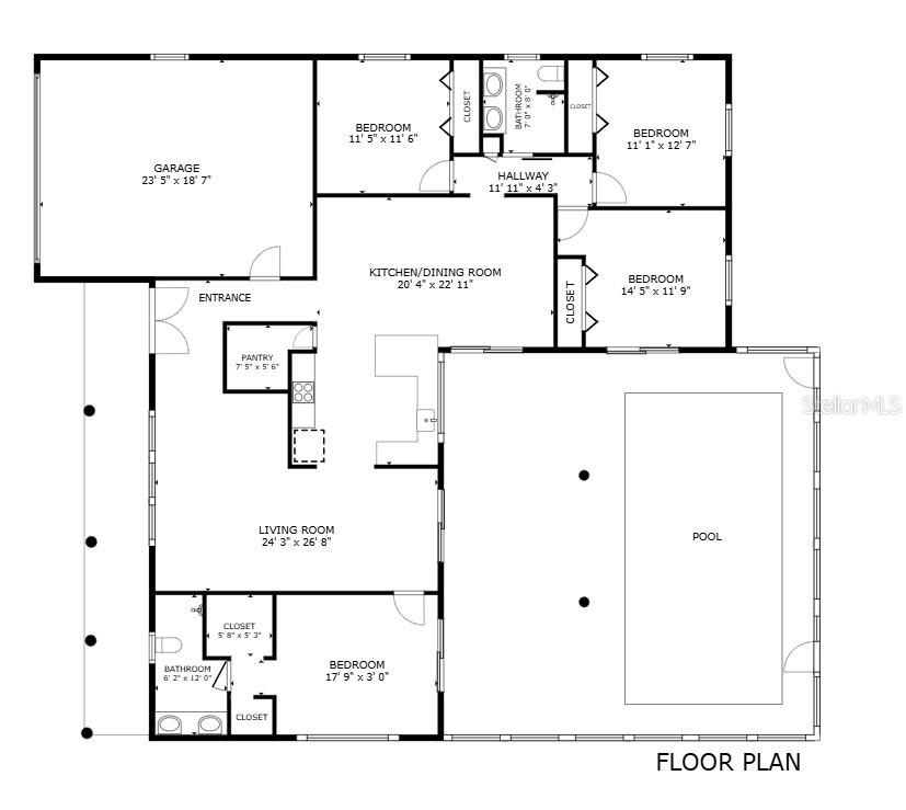
Rooms | Dimension | Description |
---|---|---|
Living Room | 11.5x20 | First level , Ceramic Tile , Ceiling Fan(s) |
Kitchen | 9x11 | First level , Ceramic Tile , Granite Counters , Walk-In Pantry |
Dining Room | 10.5x13 | First level , Ceramic Tile |
Primary Bedroom | 12x16 | First level , Ceramic Tile , Ceiling Fan(s) |
Bedroom 2 | 11x12 | First level , Ceramic Tile , Built-In Shelving , Ceiling Fan(s) |
Bathroom 3 | 11x13 | First level , Ceramic Tile , Built-In Shelving , Ceiling Fan(s) |
Bedroom 4 | 11x12 | First level , Ceramic Tile , Built-In Shelving , Ceiling Fan(s) |
4, 2, 2,477ft²
MLS#: TB8431126
4, 2, 2,396ft²
MLS#: TB8349439
4, 2, 2,396ft²
MLS#: TB8373623
Apollo Beach / Waterset Спільнота
5, 4, 3,933ft²
MLS#: TB8433397