
9473 FOREST HILLS PL
3, 2, 1,244ft²
MLS#: TB8387954
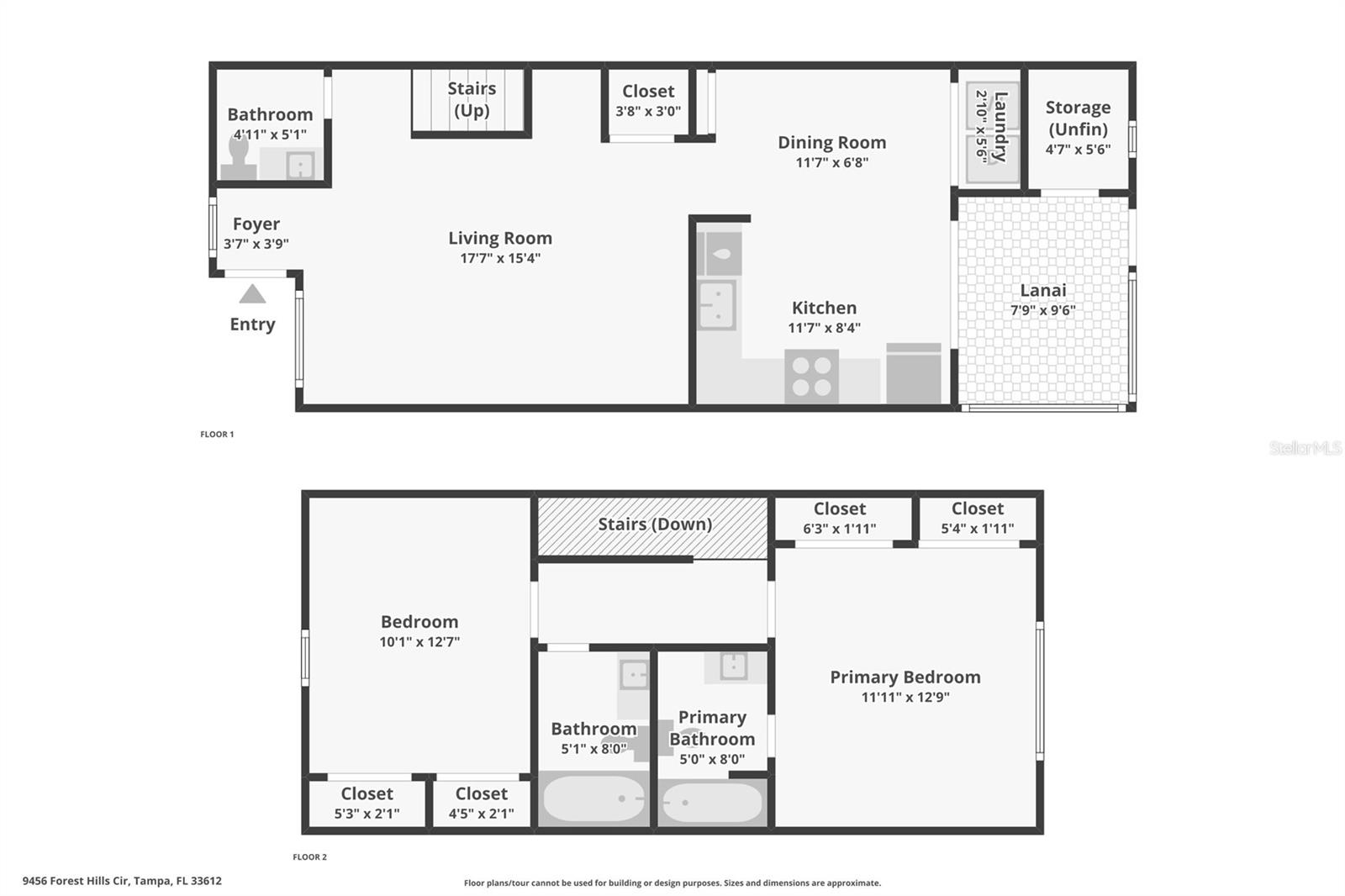
Welcome to this bright 2-bedroom, 2.5-bath townhouse in Historical Forest Hills! This ready to move in home is in Flood Zone X. The main level features a half bath, open living area with a skylight, and impact-rated double-pane sliding doors that lead to a screened lanai and fenced backyard with a large storage closet. Upstairs you'll find two bedrooms, the primary suite with en-suite bath, and a second full bath for the generously sized second bedroom. Full set of appliances: range, refrigerator, dishwasher, microwave, washer, and dryer. Assigned parking for two cars sits right in front of the unit. This pet-friendly community offers a pool, and the HOA covers water, cable, internet, and lawn care. Recent updates include a new roof (2021) and water heater (2022). You're just minutes from W Busch Ave, N Blvd, N Rome Ave, N Armenia Ave, Babe Zaharias Golf Course, Lowry Park, Busch Gardens, Raymond James Stadium, shopping, dining, and the airport. Easy to show with a SupraBox on site, book your tour today via ShowingTime!
Driving directions : W Bush Blvd to N. Rome Cir, then right onto Forest Hills Place, and right into Forest Hills Village.
Rooms | Dimension | Description |
---|---|---|
Kitchen | 14x10 | First level , Tile |
Living Room | 12x16 | First level , Tile |
Primary Bedroom | 13x11 | Second level , Laminate |
Bedroom 2 | 10x13 | Second level , Laminate |
3, 2, 1,244ft²
MLS#: TB8387954
4, 2, 1,003ft²
MLS#: TB8431235
3, 2, 1,244ft²
MLS#: TB8425663
3, 2, 1,005ft²
MLS#: TB8433938