
10131 HAVERHILL RIDGE DR #10131
Riverview / Valhalla Спільнота
3, 2, 1,644ft²
MLS#: TB8433066
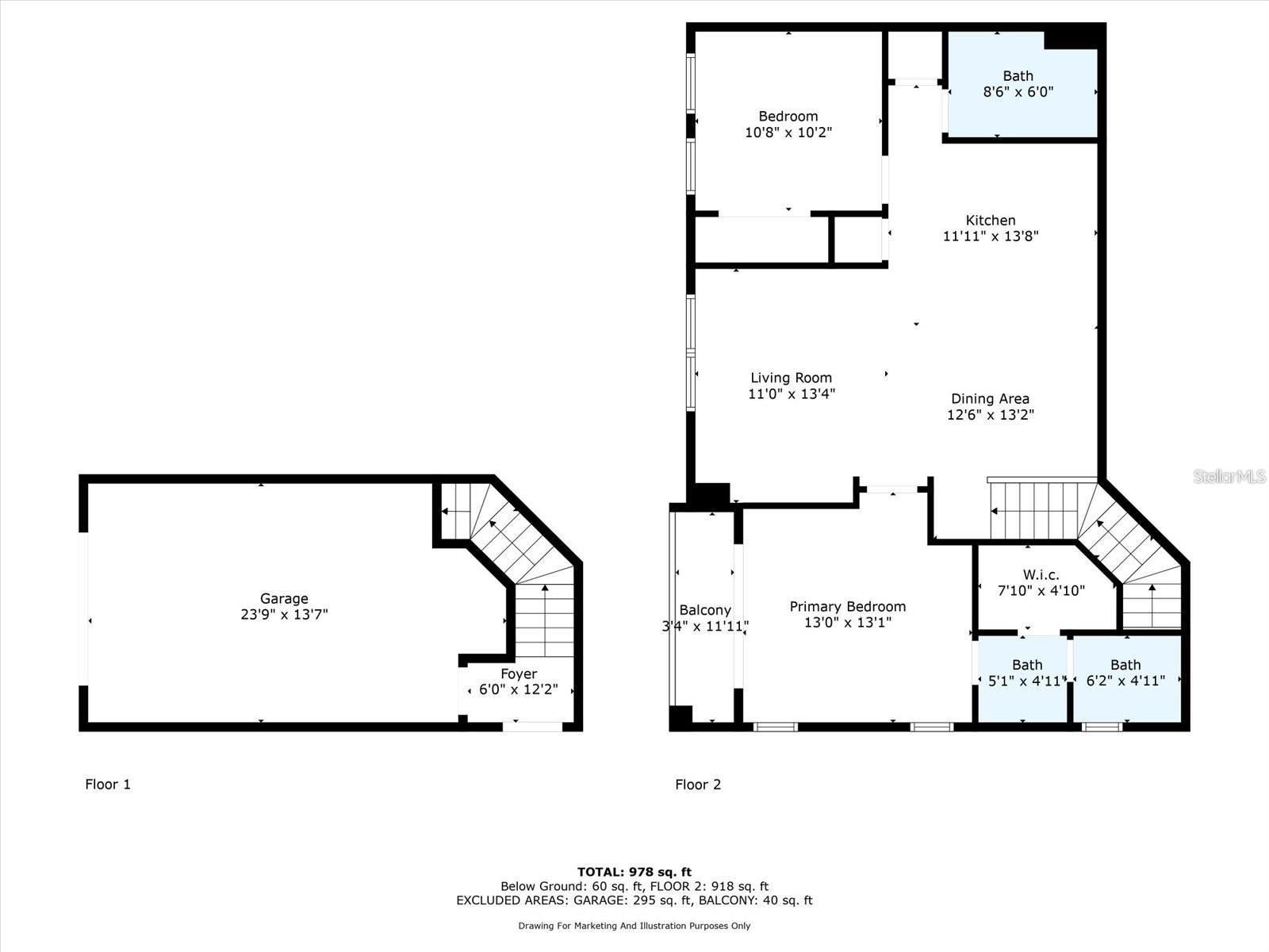
Welcome to this DR Horton gated community offering a newly remodeled 2-bedroom, 2.5-bathroom with attached garage townhome located within community of Eagle Palms. The first floor offers an inviting open-floorpan, the living room, dining room, and kitchen flow offering a great space for all lifestyles. the sliding doors in the master room offering a private patio. The open kitchen area has plenty of space including a bar counter and a walk-in pantry closet. The Home features brand new luxury vinyl wood plank and a freshly painted look on all of the walls, Nice Corian countertops, newer appliances make this place a great value. Enjoy the community pool, gated entrance and convenient location to jump on all the expressways. Hurry up and schedule a tour while its still available!
Driving directions : SOUTH FAULKENBURG TO LEFT ON EAGLE PALMS
Rooms | Dimension | Description |
---|---|---|
Bedroom 2 | 10x11 | Second level |
Dining Room | 9x9 | Second level |
Kitchen | 10x8 | Second level , Pantry |
Living Room | 12x14 | Second level |
Primary Bathroom | Second level , Double Vanity , Tub With Shower | |
Primary Bedroom | 12x14 | Second level |
Riverview / Valhalla Спільнота
3, 2, 1,644ft²
MLS#: TB8433066
2, 2, 1,360ft²
MLS#: TB8375696
3, 2, 1,622ft²
MLS#: TB8376086
3, 2, 1,477ft²
MLS#: TB8419454