English / Español / Русский

Julia Vakulenko - Broker -

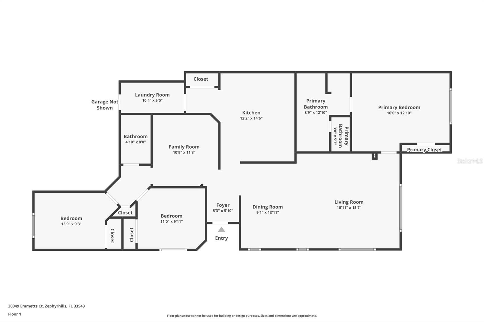
OM711926 OM711926 OM711926 OM711926 Living Room Living Room Living Room Living Room Virtual Staging OM711926 OM711926 Primary Bathroom Virtual Staging Primary Bedroom Primary Bathroom Primary Bathroom 3rd bedroom 3rd bedroom Second Bathroom 2nd bedroom Flex room Foyer OM711926 OM711926 OM711926 OM711926 OM711926 OM711926 OM711926 OM711926 OM711926 Laundry room Sidewalk to front door Front Door OM711926 OM711926 OM711926
Loading map ...
Loading map ...

30049 EMMETTS CT, WESLEY CHAPEL, 33543



Property highlights

  • MLS#: OM711926
  • 4,680.00 lot size Sq.Ft.
  • Year built: 2000
  • Parking spaces: 2
  • Pool: Community pool
  • Listed: 10/22/2025
  • Taxes: $4,427.97
  • Annual CDD fee (inc. in Taxes): $1,926.00
  • HOA fees (monthly): $181.80
  • Average Monthly Fees (not including CDD, if any): $181.80
  • Virtual Tour

Property Overview

One or more photo(s) has been virtually staged. Welcome Home!
Located at the end of a quiet cul-de-sac in the gated community of Meadow Pointe II, this well maintained villa offers comfort, space, and low-maintenance living. Featuring 3 bedrooms, 2 bathrooms, and a versatile flex room that could be an office, formal dining room or a space for the kids to play, this home has an open layout filled with natural light and thoughtfully designed living spaces.

The kitchen overlooks the dining area and Living Room—an ideal setup for everyday living or entertaining guests. Sliding glass doors open to an extended, covered lanai where you can unwind and enjoy the Florida lifestyle. This is a non 55+ community.

The primary bedroom is conveniently located just off the Living Room and features a walk-in closet and a en-suite bathroom complete with double vanities and a walk-in shower with a glass enclosure and a tub.
This split floor plan offers 2 additional bedrooms towards the front of the home with a shared bathroom.

Community & Location
Meadow Pointe II is a sought-after community offering resort-style amenities including a clubhouse, community pool, fitness center, playground, walking paths, and courts for tennis and basketball. HOA includes lawn maintenance. Home was repainted(exterior) in 2025.

You’ll love the convenience of being close to premier shopping and dining at The Shops at Wiregrass, Tampa Premium Outlets, top-rated restaurants, medical facilities, and easy access to I-75 and I-275.

Driving directions : From 75 North Right onto 56 Right onto Bruce B Downs Left onto Aronwood Blvd Left onto Countyline Rd Left onto Sassafras Dr Left onto Echo Pond Pl Left onto Emmetts Ct Home is on the right

Property Features

Rooms Dimension Description
Kitchen 14x11 First level , Linoleum
Primary Bedroom 12x15 First level , Carpet
Bedroom 2 9x11 First level , Carpet
Bedroom 3 10x10 First level , Carpet
Living Room 16x17 First level , Laminate
Bonus Room 10x11 First level , Carpet
Dining Room 16x9 First level , Laminate

Interior Features

  • Ceiling Fans(s)
  • Walk-In Closet(s)
  • Window Treatments

Appliances

  • Dishwasher
  • Disposal
  • Dryer
  • Electric Water Heater
  • Range
  • Refrigerator
  • Washer

Heating

  • Central

Laundry features

  • Inside

Air Conditioning

  • Central Air

Floor Covering

  • Carpet
  • Laminate
  • Linoleum

Utilities

  • Cable Available

Exterior features

  • Sliding Doors

Patio and porch features

  • Covered
  • Screened

Pets restrictions

  • Call HOA for update rules

Community Features

  • Deed Restrictions
  • Fitness Center
  • Pool
  • Tennis Court(s)

Association Amenities

  • Basketball Court
  • Fitness Center
  • Gated
  • Pool
  • Tennis Court(s)

Construction Materials

  • Stucco

Road Surface Type

  • Asphalt

Roof

  • Shingle

Foundation

  • Slab

Vegetation

  • Mature Landscaping

Lot Features

  • Landscaped
  • Paved

Listing information courtesy of LPT REALTY, LLC

All listing information is deemed reliable but not guaranteed and should be independently verified through personal inspection by appropriate professionals. Listings displayed on this website may be subject to prior sale or removal from sale; availability of any listing should always be independently verified.
Listing information is provided for consumer personal, non-commercial use, solely to identify potential properties for potential purchase; all other use is strictly prohibited and may violate relevant federal and state law.
Listing data comes from My Florida Regional MLS.