
12308 N 53RD ST
3, 2, 1,149ft²
MLS#: TB8412694
One or more photo(s) has been virtually staged. Welcome to this beautifully transformed property featuring new windows, new roof and new HVAC system! The interior boasts a fresh, neutral color paint scheme, new flooring throughout and a completely remodeled kitchen. The primary bedroom provides ample storage space with the large closet. The exterior has been freshly painted, enhancing its curb appeal. The backyard offers new fencing - perfect for outdoor relaxation. With all these updates, this home is ready for you to make it your own. Come and see the quality and care put into this ready house. 100-Day Home Warranty coverage available at closing
Driving directions : Head south on FL-583 S Turn right onto Puritan Rd Turn left onto N 53rd St
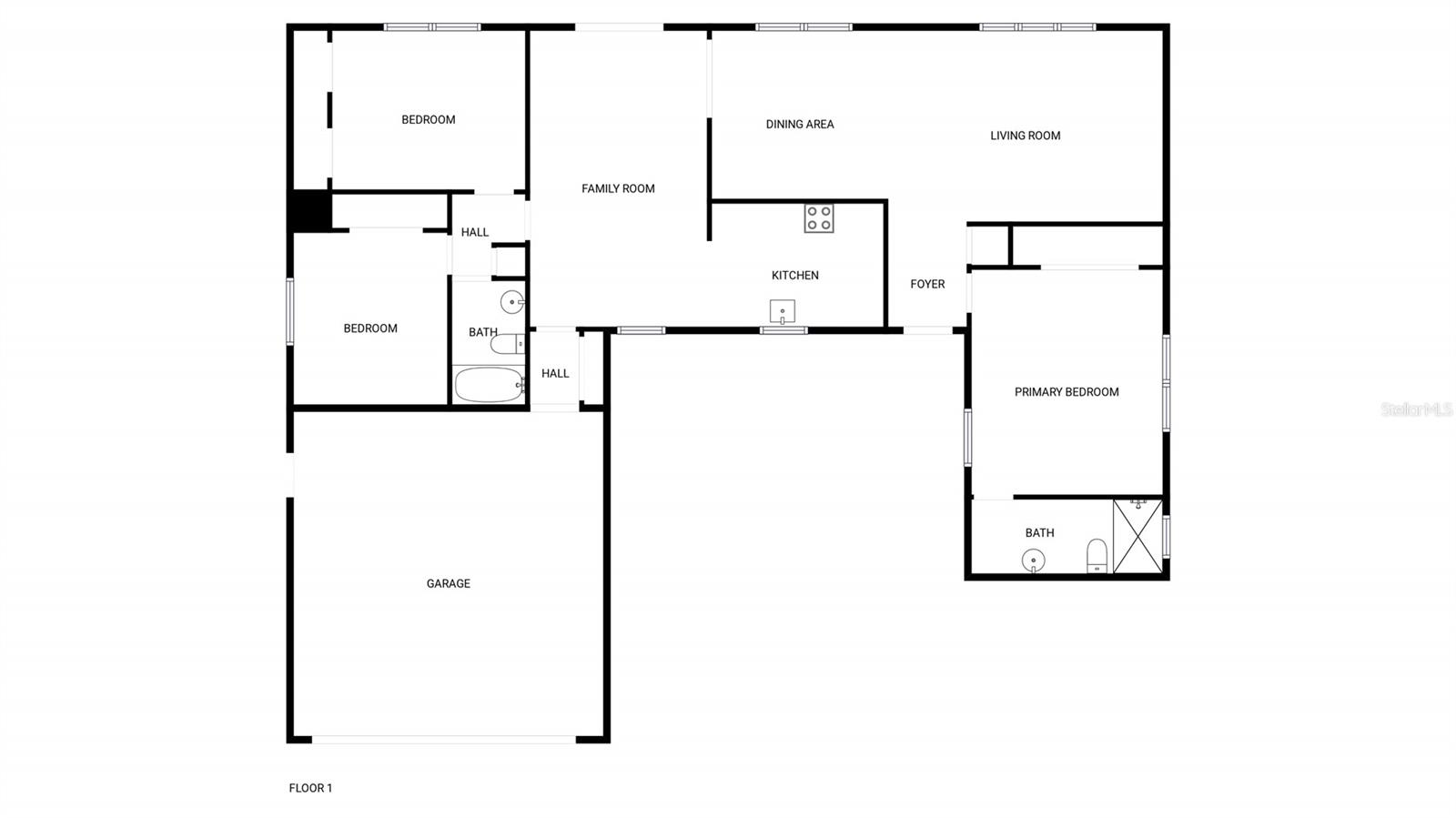
Rooms | Dimension | Description |
---|---|---|
Kitchen | First level | |
Living Room | First level | |
Primary Bedroom | First level |
3, 2, 1,149ft²
MLS#: TB8412694
3, 2, 1,854ft²
MLS#: TB8435108
4, 3, 1,475ft²
MLS#: TB8406374
4, 2, 1,991ft²
MLS#: TB8427946